Đăng tin

Mega Ruby

5
Mega Ruby
Tỷ lệ: 5 (93%) 68 votes
.Đánh giá của bạn
  • Loại hình phát triển Biệt thự liền kề
  • Chủ đầu tư Công ty Cổ Phần Đầu Tư và Kinh Doanh nhà Khang Điền
  • Địa chỉ Phường Phú Hữu, Quận 9, Hồ Chí Minh
  • Tổng diện tích 49.000 m²
  • Giá bán 14.7 triệu/m²
  • Quy mô dự án 235 căn biệt thự và nhà phố

Thông tin tổng quan dự án Mega Ruby

Dự án Mega Ruby nằm trong quần thể dự án Mega - dòng sản phẩm “Nhà liên kế, có sân vườn, compound an ninh, bảo vệ 24/24, thiết kế hiện đại, giá bán trung bình” đã đạt được thành công nhất định trên thị trường.


Góc nhìn bên ngoài biệt thự Mega Ruby

Mega Ruby-0 Mega Ruby-1 Mega Ruby-2 Mega Ruby-3 Mega Ruby-4

Vị trí Mega Ruby:

Mega Ruby tọa lạc ngay mặt tiền đường Vành Đai Trong giao với cao tốc Tp.HCM (Long Thành - Giầu Dây), thuộc phường Phú Hữu, Quận 9, giáp ranh quận 2 - đặc khu hành chính, văn hóa phía đông thành phố. Dự án tiếp giáp với nhiều dự án lớn như Villa Park (Khang Điền), Goldora Villa (IndochinaLand), Riviera Cove (KeppleLand), Căn hộ Easten, căn hộ SpacSpring (Capital Land)....


Vị trí dự án Mega Ruby

Hạ tầng Mega Ruby:

Mega Ruby nơi được tập trung đầu tư về cơ sở hạ tầng với hàng loạt các tuyến đường trọng điểm đã được hoàn thiện và đưa vào sử dụng: Cầu Thủ Thiêm, Cầu Phú Mỹ, Hầm Thủ Thiêm, Cầu Sài Gòn 2, Đường vành đai trong và mới đây nhất là tuyến đường cao tốc Tp.HCM – Long Thành – Dầu Giây vừa thông xe đoạn từ Tp.HCM về Long Thành vào 01/2014.

Tiếp giáp các khu dân cư cao cấp: Villa Park (Khang Điền), Riviera Cove (Keppel Land), The Garland (VinaCapital), Eden (Indochina Land), liền kề các tiện ích công cộng như: bệnh viện, siêu thị Co.opMart, trường học, chợ…

- Cách trung tâm quận 1 chỉ 15 phút, Cách Phú Mỹ Hững chỉ 10 phút.
-Chỉ mất 15-20 phút về đến trung tâm thành phố với tuyến đường Vành Đai phía Đông Thành phố hoặc Đại lộ Đông Tây
-Chỉ mất 10 phút để về đến Quận 2 với đường Xa Lộ Hà Nội được mở rộng 150m.
-Chỉ mất 15 phút để đến Quận 7 với tuyến đường Vành Đai phía Đông Thành phố và Cầu Phú Mỹ
- Nhanh chóng kết nối với các tỉnh Bình Dương, Đồng Nai và sân bay quốc tế Long Thành với tuyến đường Cao tốc TPHCM - Long Thành - Dầu Giây.
- Dự án Mega Ruby chính là Phú Mỹ Hưng Thứ 2, là khu năng động và phát triển vượt bậc. Đến với dự án Mega Ruby, sẽ là cơ hội đầu tư cũng như là cơ hội an cư tốt.

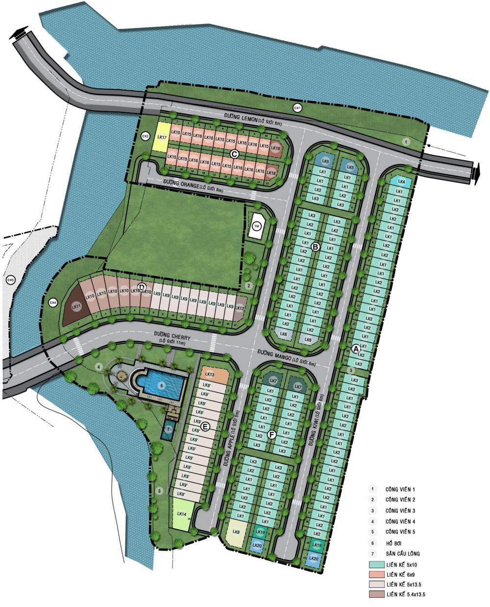
Sơ đồ tổng thể Mega Ruby

Mega Ruby

THƯ VIỆN ẢNH Mega Ruby

Nhà phố Mega Ruby
Nhà phố Mega Ruby
Nhà phố Mega Ruby 1 Nhà phố Mega Ruby 2

Quý III/2016 (ngày 23/09/2016) Mega Ruby

  • Dự án đã hoàn thiện và đưa sử dụng

    Dự án đã hoàn thiện và đưa sử dụng

  • Dự án đã hoàn thiện và đưa sử dụng

    Dự án đã hoàn thiện và đưa sử dụng

  • Dự án đã hoàn thiện và đưa sử dụng

    Dự án đã hoàn thiện và đưa sử dụng

  • Dự án đã hoàn thiện và đưa sử dụng

    Dự án đã hoàn thiện và đưa sử dụng

  • Dự án đã hoàn thiện và đưa sử dụng

    Dự án đã hoàn thiện và đưa sử dụng

  • Dự án đã hoàn thiện và đưa sử dụng

    Dự án đã hoàn thiện và đưa sử dụng

Lộ trình thanh toán Mega Ruby

Sản phẩm đang chào bán với giá từ 14.5 triệu đồng/m2 - giao nhà có sổ hồng.

Chủ đầu tư Mega Ruby

  • Công ty Cổ Phần Đầu Tư và Kinh Doanh nhà Khang Điền
  • Địa chỉ:Phòng 603, Tầng 6, Tòa nhà Centec, 72-74 Nguyễn Thị Minh Khai, P.6, Q.3, TPHCM.
  • Điện thoại:0936939656

Trải qua hơn 15 năm hình thành và phát triển Khang Điền luôn vững vàng với mục tiêu mang lại cho khách hàng những sản phẩm bất động sản tốt nhất bằng dịch vụ chuyên nghiệp nhất.

Tự tin với sức mạnh của các lợi thế: Quỹ đất sạch hơn 100 ha tại nơi có quy hoạch đồng bộ, hiện đại và thuận tiện bậc nhất tại Tp.HCM, pháp lý minh bạch, giá cả hợp lý, chất lượng vượt trội Khang Điền đã và đang khẳng định vị thế là nhà cung cấp giải pháp bất động sản toàn diện tạo lập cuộc sống ưu việt cho khách hàng.

Khang Điền với tiềm lực mạnh về tài chính, vững vàng về kinh nghiệm luôn nỗ lực không ngừng để mang lại cho khách hàng một nơi “an cư lạc nghiệp”, để nâng cao vị thế của mình trên thị trường bất động sản Việt Nam, giữ vững niềm tin trong tâm trí khách hàng và các đối tác.

Trở thành nhà đầu tư, kinh doanh bất động sản hàng đầu Tp.HCM và trong khu vực thông qua chiến lược phát triển bền vững dựa trên chuỗi các lợi thế cạnh tranh: Vị trí đắc địa, tiềm lực tài chính mạnh mẽ, đội ngũ cán bộ công nhân viên tâm huyết và giàu kinh nghiệm, để đưa việc phát triển thương hiệu Khang Điền ngày càng vững vàng, nổi tiếng.

Cung cấp những sản phẩm mang thương hiệu Khang Điền với chất lượng chuẩn quốc tế với không gian sống hoàn hảo, kiến trúc hiện đại, chất lượng vượt trội, giá cả hợp lý, pháp lý minh bạch thỏa mãn nhu cầu của khách hàng, góp phần thay đổi diện mạo kiến trúc đất nước và phát triển cộng đồng.

Tin rao thuộc dự án

Xem tin rao Bán căn hộ chung cư Mega Ruby

Xem tin rao Bán nhà riêng, ngõ, hẻm Mega Ruby

Xem tin rao Bán nhà biệt thự, liền kề Mega Ruby

Xem tin rao Cho thuê căn hộ chung cư Mega Ruby

Xem tin rao Cho thuê nhà riêng Mega Ruby

Xem tin rao Cho thuê nhà mặt phố Mega Ruby

Xem tin rao Cho thuê cửa hàng, ki ốt Mega Ruby

Xem tin rao Cho thuê kho, nhà xưởng, đất Mega Ruby

Xem tin rao Cho thuê loại bất động sản khác Mega Ruby

Xem tin rao Bán đất Mega Ruby

Dự án cùng khu vực

Dự án Trí Minh

Dự án Trí Minh

Đường Vành Đai Trong, Phường Phú Hữu, Quận 9, Hồ Chí Minh

Giá từ:Đang cập nhật

Valora Fuji

Valora Fuji

Đường Phước Hữu, phước Long B, quận 9, Tp.HCM

Giá từ:Đang cập nhật

Riviera Cove

Riviera Cove

Đường D3 , Phú Hữu, Quận 9 , TP.HCM

Giá từ:Đang cập nhật

Xem thêm

Dự án cùng phân khúc

Nine South Estates

Nine South Estates

Đường Nguyễn Hữu Thọ, Thị trấn Nhà Bè, Nhà Bè, Hồ Chí Minh

Giá từ:40 triệu/m²

Khu biệt thự Ngân Long

Khu biệt thự Ngân Long

Đường Nguyễn Hữu Thọ, Xã Phước Kiển, Nhà Bè, Hồ Chí Minh

Giá từ:70 triệu/m²

Metro Garden

Metro Garden

123 Đường Dương Công Khi, Xã Tân Thới Nhì, Hóc Môn, Hồ Chí Minh

Giá từ:13.6 triệu/m²

Mỹ Tú 1

Mỹ Tú 1

Đường Lý Long Tường, Phường Tân Phong, Quận 7, Hồ Chí Minh

Giá từ:100 triệu/m²

Khu Biệt Thự Mỹ Kim 1,2

Khu Biệt Thự Mỹ Kim 1,2

Khu Cảnh Đồi, Quận 7, TP. Hồ Chí Minh

Giá từ:90 triệu/m²

Mỹ Tú 3

Mỹ Tú 3

Đường Tôn Dật Tiên, Phường Tân Phong, Quận 7, Hồ Chí Minh

Giá từ:84 triệu/m²

Xem thêm

Tiện ích
Xem phong thủy theo tuổi
Tìm kiếm dự án BĐS