Metro Garden
- Loại hình phát triển Biệt thự liền kề
- Chủ đầu tư Công ty TNHH Tư vấn Đầu tư BĐS Yến Phương
- Địa chỉ 123 Đường Dương Công Khi, Xã Tân Thới Nhì, Hóc Môn, Hồ Chí Minh
- Tổng diện tích 17.553 m²
- Mật độ xây dựng 40%
- Giá bán 13.6 triệu/m²
- Quy mô dự án 92 căn biệt thự
Thông tin tổng quan dự ánMetro Garden
Tọa lạc ở Xã Tân Thới Nhì, huyện Hóc Môn, Tp.HCM, Khu dân cư Metro Garden là sự kết hợp hoàn hảo giữa môi trường sống gần gũi với thiên nhiên và hệ thốngtiện ích hiện đại,hứa hẹn sẽ mang đến những trãi nghiệm thú vịcho cuộc sống của bạn.
- Tên dự án:Metro Garden
- Chủ đầu tư:Công ty TNHH Đầu tư Bất động sản Yến Phương
-Vị trí: Số 123 đường Dương Công Khi, xã Tân ThớiNhì, huyện Hóc Môn, Tp.HCM
- Loại hình phát triển: Khu biệt thự
- Diện tích khu đất:17,553m2
- Mật độ xây dựng toàn khu: 40%
- Quy mô: 92 căn
- Diện tích nền:80m2-300m2
- Quy mô dân số: 410 người
- Hệ số sử dụng đất: 1.2
- Các loại diện tích: 5x16, 5x17, 5x20, 5x22, 6x22….
- Tầng cao: tối thiểu 1 tầng - tối đa 3 tầng (1 trệt, 1 lửng, 1 lầu)

Phối cảnh dự ánMetro Garden
Vị trí Metro Garden:
Thuộc khu quy hoạch đô thị Tây Bắc Tp.HCM,Metro Garden tọa lạc tạisố 123 đường Dương Công Khi, xã Tân ThớiNhì, huyện Hóc Môn, Tp.HCM. Dự án sở hữu những điểm mạnh về vị trí địa lý như sau:
- Nằm trên khu vực Hóc Môn - Củ Chicó nền đất cao nên sẽkhông bị ngập nước do mưa lũ,triều cường
- Kết nối khu vực: Dự ánnằm cách ngã tư Hồng Châu chỉ 1.5km nêncư dân có thể di chuyểnnhanh chóng vào trung tâm thành phố qua quốc lộ 22 hoặc di chuyển tới trung tâm huyện (quận) Hóc Môn qua đường Lê Lợi.

Vị trí dự ánMetro Garden
Hạ tầng Metro Garden:
Tiện ích nội khu
Với hệ thống tiện ích nội khu hoàn hảo, Khu dân cưMetro Gardensẽ mang đến cho cư dân những trải nghiệm thú vị về một cuộc sống tiện nghi, đẳng cấp:
- An ninh 24/24 với chốt bảo vệ, tuần tra và hệ thống camera an ninh hiện đại, chuyên nghiệp
- Siêu thị mini
- Vườn yoga, vườn nướng BBQ, bãi đỗ xe...

Hệ thống tiện ích nội khu tạiMetro Garden
Tiện ích ngoại Khu
Thuộckhu quy hoạch đô thị Tây Bắc Tp.HCM,Metro Garden có những điểm mạnh về kết nối tiện ích ngoại khu
- Cách chùa Hoằng Pháp 1km
- Cách trung tâm thị trấn Hóc Môn 2km
- Siêu thị Co-op Mart Trung Chánh 3km
- Khu công nghiệp Xuyên Á 4km
- Trường đại học Vận Tải cơ sở 3, trường đại học FPT 5km
- Cách bến xe An Sương 5km
- Cách sân bay Tân Sơn Nhất 8 km
- Cách bệnh viện đa khoa Hóc Môn2 km, bệnh viện đa khoa Xuyên Á3km

Kết nối tiện ích ngoại khu
Sơ đồ tổng thể Metro Garden
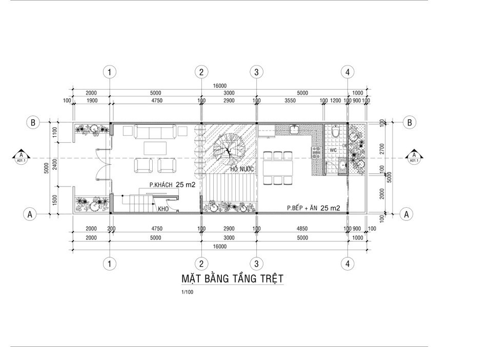
Mặt bằng Metro Garden
- Tầng trệt
- Tầng lửng
THƯ VIỆN ẢNH Metro Garden
Lộ trình thanh toán Metro Garden
Phương thức thanh toán
- Chỉ với 13,6 triệu đồng/m2 (đã baoVAT), quý khách đã có thể sở hữu sản phẩm tạiMetro Garden.
Tiến độthanh toán linh hoạt trong 16 tháng không lãi suất:
+ Kháchđóng trước 20% khi ký hợp đồng, 80% còn lại chia đều cho 16 tháng với mức lãi suất 0%
+ Kháchđóng trước 50% khi ký hợp đồng sẽ được chiết khấu5%, còn lại góp 16 tháng lãi suất 0%
+ Kháchđóng trước 100% sẽ được nhận ngay sổ hồng
- Pháp Lý: Sổ Hồng Riêng từng nền
-Ngân Hàng VIB hỗ trợ lên đến 70%

Chủ đầu tư Metro Garden
- Công ty TNHH Tư vấn Đầu tư BĐS Yến Phương
- Địa chỉ:37 (Lầu 1) Hoàng Diệu, phường 12, quận 4, Tp.HCM
- Điện thoại:0908285779
Công ty TNHH Tư vấn Đầu tư BĐS Yến Phương chuyên kinh doanh BĐS, quyền sử dụng đất thuộc chủ sở hữu, chủ sử dụng hoặc đi thuê. Doanh nghiệp bắt đầu hoạt động từ 24/11/2008 theo Giấy phép kinh doanh số 0306220683 cấp ngày 01/12/2008.
Tin rao thuộc dự án
Xem tin rao Cho thuê nhà mặt phố Metro Garden
Dự án cùng khu vực
Dự án cùng phân khúc
Khu biệt thự Ngân Long
Đường Nguyễn Hữu Thọ, Xã Phước Kiển, Nhà Bè, Hồ Chí Minh
Giá từ:70 triệu/m²
