Khu đô thị Phúc Đạt
- Loại hình phát triển Khu đô thị mới
- Chủ đầu tư Công ty TNHH Sản xuất và Thương mại Phúc Đạt
- Địa chỉ Đường Mỹ Phước Tân Vạn, Phường Phú Lợi, Thủ Dầu Một, Bình Dương
- Tổng diện tích 190.000 m²
- Quy mô dự án 1.200 nền gồm nhà phố, biệt thự
Thông tin tổng quan dự ánKhu đô thị Phúc Đạt
Là một dự án đầy tâm huyết của Công Ty TNHH Sản Xuất Và Thương Mại Phúc Đạt, khu đô thị Phúc Đạt được đầu tư vô cùng bài bản nhằm mục đích mang đến một không gian sống hoàn mỹ, xứng tầm đẳng cấp cho các chủ nhân tương lai.
KĐT Phúc Đạt có diện tích quy hoạch lên đến 19ha, được triển khai với quy mô 1.200 nền gồm nhà phố, biệt thự. Tọa lạc ngay trung tâm TP. Thủ Dầu Một thuộc khu tam giác vàng kết nối các vùng kinh tế KCN lớn trọng điểm của tỉnh Bình Dương - Tp.HCM- Đồng Nai, dự án hứa hẹn sẽ đem lại giá trị sinh lời tốt trong tương lai gần cho các nhà đầu tư nhạy bén.
- Tên dự án: KĐT Phúc Đạt
- Chủ đầu tư: Công Ty TNHH Sản Xuất Và Thương Mại Phúc Đạt
- Diện tích tổng thể:19 ha
- Tổng số sản phẩm là: 1.200 nền gồm nhà phố, biệt thự
- Mật độ xây dựng: 56%
- Thời gian bàn giao: Quý I/2018

Phối cảnh tổng thể dự ánKhu đô thị Phúc Đạt
Vị trí Khu đô thị Phúc Đạt:
KĐT Phúc Đạt nằm trên đường Mỹ Phước Tân Vạn thuộc địa bàn phường Phú Lợi, TP. Thủ Dầu Một, Bình Dương. Với vị trí đắc địa thuộcvùng kinh tế trọng điểm phía Nam, dự án sở hữu giao thông khá thuận lợi cho việc kết nối đếncác huyện, thị và tỉnh thành lân cận.
Dự án được bao quanh bởi 4 mặt tiền đường lớn:
-Đường Huỳnh Văn Lũy (rộng 16m)
- Đường Hoàng Hoa Thám kéodài (16m)
- Đường cao tốc Mỹ Phước – Tân Vạn(rộng 26m)
- Đường Phạm Ngũ Lão (9m)
- 10 phút vàotrung tân hành chính TP Mới Bình Dương qua đường Phạm Ngọc Thạch, Huỳnh Văn Lũy.
- Kết nối nhanh chóng vớicác vùng kinh tế trọng điểm của tỉnh Bình Dương, Tp.HCM, Đồng Nai quađường Cao Tốc Mỹ Phước – Tân Vạn và QL13
- Gần cácKCN lớn nhất Bình Dương: KCNĐại Đăng, KCN VSIP II, KCN Mỹ Phước I, II, II, IV…
Hạ tầng Khu đô thị Phúc Đạt:
KĐT Phúc Đạt sở hữu cơ cấu hạ tầng hoàn chỉnh vớihệ thống điện nước âm hiện đại, phố đi bộ, cây xanh,khu thương mại dịch vụ, trường học và các tiện íchsống đẳng cấp đảm bảo phục vụ tốt đời sống cư dân.
Tiện ích nội khu
- Hệ thống đèn đường chiếu sáng đạt tiêu chuẩn KĐT
- Điện nước âm, cây xanh, vỉa hè rộng 3m – 5m
- Đường nội khu trảinhựa rộng13m – 24m
- Hệ thống lối thoát hiểm rộng 2m

Công viên nội khu

Trường quốc tế
Tiện ích ngoại khu
Với vị trí chiến lược trong quần thể cáckhu đô thị giàu tiềm năng và đang phát triển mạnh mẽ, Khu Đô Thị Phúc Đạt hứa hẹn mang đến một nơi an cư lâu dài, ổn định và bền vững cho khách hàng. Trong vòng bán kính 5km từ dự án, cư dân có thểtiếp cận với đầy đủ mọi tiện ích xung quanh một cách dễ dàng:
- Bệnh Viện Đa Khoa Bình Dương
- Sân Golf Phú Mỹ,Sân Vận Động Tỉnh Bình Dương
- Trung Tâm TP Mới Bình Dương
- Đại Học Bình Dương.
- Cung văn hóa,Nhà thiếu nhi
- Công Viên Thị Xã Thủ Dầu Một
- Trường Chuyên Hùng Vương

Kết nối tiện ích của dự án KĐT Phúc Đạt
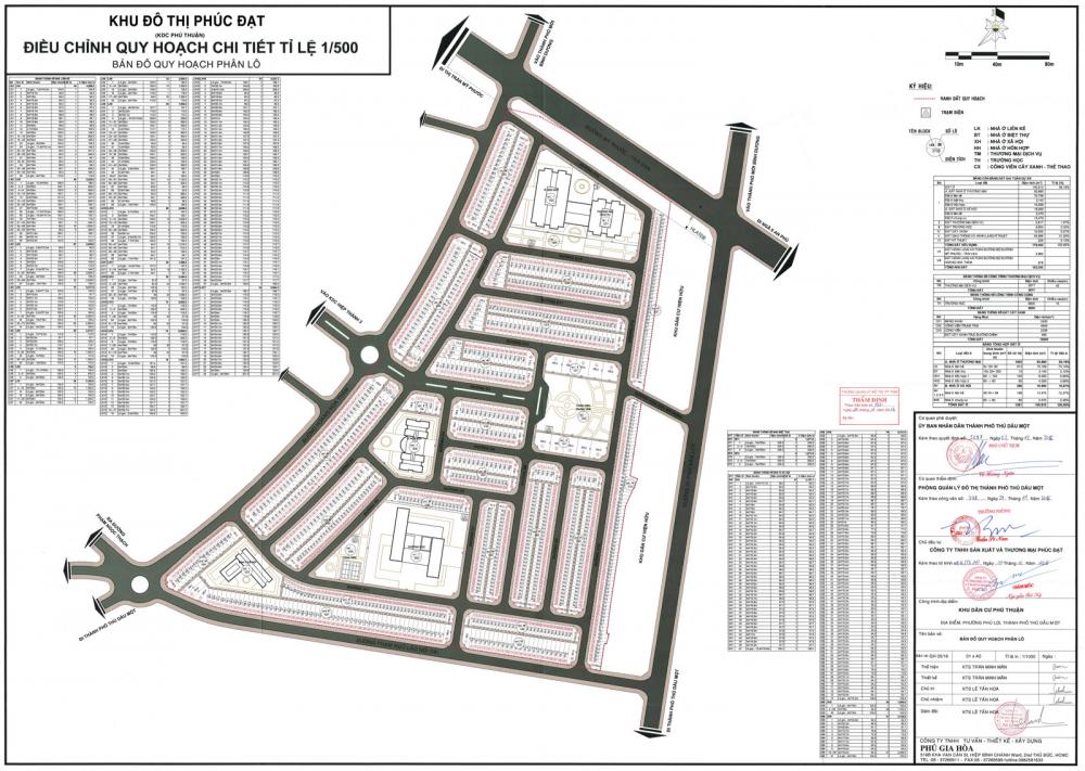
Sơ đồ tổng thể Khu đô thị Phúc Đạt
THƯ VIỆN ẢNH Khu đô thị Phúc Đạt
Tiến độ quý I/2018 (ngày 07/01/2018) Khu đô thị Phúc Đạt
VIDEO Khu Đô Thị Phúc Đạt
Chủ đầu tư Khu đô thị Phúc Đạt
- Công ty TNHH Sản xuất và Thương mại Phúc Đạt
- Địa chỉ:88 Đường 10, Khu Phố Thống Nhất, phường Dĩ An, Thị xã Dĩ An, tỉnh Bình Dương
- Điện thoại:(0650) 3732345
- Email: phucdat207@gmail.com
- WebSite:http://www.phucdat.com.vn
Công ty TNHH Sản xuất và Thương mại Phúc Đạt chuyên kinh doanh, tư vấn, môi giới bất động sản, mua bán & cho thuê bất động sản. Công ty có trụ sở đặt tại địa chỉ 88 Đường 10, Khu Phố Thống Nhất, phường Dĩ An, Thị xã Dĩ An, tỉnh Bình Dương.
Ngành nghề kinh doanh:
- Bất động sản - các công ty bất động sản
- Bất động sản bán
- Bất động sản cho thuê
- Bất động sản mua
- Cho thuê kho bãi
- Chuyển nhượng quyền sử dụng đất
- Công ty mua bán bất động sản
- Đất làm dự án
- Giao dịch bất động sản
- Kinh doanh bất động sản
- Kinh doanh khách sạn
- Kinh doanh nhà sách
- Kinh doanh quán cà phê
- Mua bán bất động sản
- Sàn giao dịch bất động sản
Tin rao thuộc dự án
Xem tin rao Bán căn hộ chung cư Khu đô thị Phúc Đạt
Xem tin rao Bán nhà riêng, ngõ, hẻm Khu đô thị Phúc Đạt
Xem tin rao Bán nhà biệt thự, liền kề Khu đô thị Phúc Đạt
Xem tin rao Bán nhà mặt tiền, mặt phố Khu đô thị Phúc Đạt
Xem tin rao Bán đất nền dự án Khu đô thị Phúc Đạt
Xem tin rao Bán đất thổ cư Khu đô thị Phúc Đạt
Xem tin rao Bán loại bất động sản khác Khu đô thị Phúc Đạt
Xem tin rao Cho thuê căn hộ chung cư Khu đô thị Phúc Đạt
Xem tin rao Cho thuê nhà riêng Khu đô thị Phúc Đạt
Xem tin rao Cho thuê nhà mặt phố Khu đô thị Phúc Đạt
Xem tin rao Cho thuê văn phòng Khu đô thị Phúc Đạt
Xem tin rao Cho thuê cửa hàng, ki ốt Khu đô thị Phúc Đạt
Dự án cùng khu vực
Khu dân cư Hiệp Thành III
Đường Phạm Ngọc Thạch, Phường Hiệp Thành, Thủ Dầu Một, Bình Dương
Giá từ:11 triệu/m²