Khu dân cư Exim Garden
- Loại hình phát triển Khu đô thị mới
- Chủ đầu tư Công ty CP Bất động sản Eximland
- Địa chỉ Đường Bưng Ông Thoàn, Phường Phú Hữu, Quận 9, Hồ Chí Minh
- Tổng diện tích 180.667 m²
- Mật độ xây dựng 45%
Thông tin dự ánKhu dân cư Exim Garden
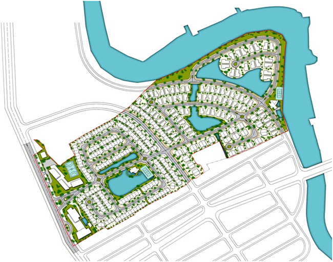
Dự án Khu dân cưExim Gardennằm trong tổng thể khu dân cư 272ha dọc đường Bưng Ông Thoàn, phường Phú Hữu, quận 9, Tp.HCM được quy hoạch là khu dân cư cao cấp với hệ thống cơ cở hạ tầng được phát triển đồng bộ. Sau khi hoàn thành, dự án sẽ kết nối với các dự án khác trong khu vực tạo nên một khu đô thị mang đẳng cấp quốc tế.
Quy hoạch tổng thể dự án
- Tên dự án:Khu dân cưExim Garden
- Chủ đầu tư:Công ty CP Bất động sản EXim
-Tổng diện tích khu đất: 180.667m2
-Mật độ xây dựng toàn khu: 45%
-Khu biệt thự, căn hộ cao cấp: 76.883m2
-Công trình công cộng – TMDV: 30.753m2
-Công viên cây xanh – TDTT: 29.045m2
-Giao thông nội bộ: 34.170m2
-Tổng mức đầu tư dự kiến: 611 tỷ đồng.
Dự án có tổng diện tích 180.667m2, với mặt tiền rộng 450m, nằm ngay ngã tư đường Liên phường (lộ giới 30m) và đường Bưng Ông Thoàn (lộ giới 30m). Dự án có 2 mặt giáp sông Ông Nhiêu (rộng hơn 30m), và liền kề vớidự án đang triển khai xây dựng như dự án của Sở Văn hóa Thông tin, khu dân cư Cao đẳng Sư phạm Mẫu giáo TW3, dự án Villa Park, Rivera Course, Phố Đông Hoa Sen, Tropica Garden, dự án của Vina Capital...

Phối cảnh dự án Khu dân cư Exim Garden
Vị trí Khu dân cư Exim Garden:
Exim Garden nằm sát bên trung tâm hành chính quận 9, có hệ thống giao thông thuận lợi để kết nối tới các trục giao thông chính cũng như các khu vực khác của thành phố như:
- Gần ngay đường Vành đai 2, nằm ngay ngã tư đường Liên phường (lộ giới 30m), đường Bưng Ông Thoàn (lộ giới 30m). Từ vị trí này chỉ mất 15 – 20 phút để di chuyển tới trung tâm thành phố, quận 2, quận 7, quận Bình Thạnh, Thủ Đức.
- Giáp với hệ thống đường cao tốc Hồ Chí Minh – Long Thành – Dầu Giây đang được đầu tư với hệ thống cơ sở hạ tầng hiện đại, di chuyển nhanh chóng đến các tỉnh như Bình Dương, Đồng Nai, Bà Rịa – Vũng Tàu…
- Cao ốc có 2 mặt giáp sông Ông Nhiêu và liền kề với dự án đang triển khai xây dựng như dự án của Sở Văn hóa Thông tin, khu dân cư Cao đẳng Sư phạm Mẫu giáo TW3, dự án Villa Park, Rivera Course, Phố Đông Hoa Sen, Tropica Garden, dự án của Vina Capital...
- Exim Garden thuộc tổng thể dự án khu dân cư 272 ha được quy hoạch trở thành khu dân cư cao cấp với hệ thống cơ cở hạ tầng được phát triển đồng bộ. Sau khi hoàn thành, dự án sẽ kết nối với các dự án khác trong khu vực tạo nên một khu đô thị mang đẳng cấp quốc tế.
Hạ tầng Khu dân cư Exim Garden:
Tiện ích dự án
Khu dân cư Exim Garden gồm các khu biệt thự sang trọng, nhà liên kế, và các cao ốc căn hộ cao cấp cùng với tất cả các dịch vụ công cộng khép kín như: Trường học, bệnh viện, trung tâm thương mại, công viên cây xanh, các khu vui chơi, trung tâm thể dục thể thao...Đặc biệt là các dịch vụ vui chơi mới lạ tại bến du thuyền dành cho những người yêu thích các môn thể thao dưới nước như: Đua thuyền, lướt ván, nhảy cầu, và du ngoạn trên sông Sài Gòn.
Với lợi thế 2 mặt giáp sông cùng với hệ thống kênh rạch len lõi và điều kiện thiên nhiên ưu đãi, Khu dân cư Exim Garden được bố trí cảnh quang hợp lý, khai thác các mảng xanh, tiểu cảnh tạo không gian khoáng đãng, tạo môi trường sống gần gũi tự nhiên.

Bể bơi trong dự án Exim Garden

Khu thương mại trong dự án Exim Garden
Sơ đồ tổng thể Khu dân cư Exim Garden
THƯ VIỆN ẢNH Khu dân cư Exim Garden
Tiến độ quý I/2017 (23/01/2017) Khu dân cư Exim Garden
Chủ đầu tư Khu dân cư Exim Garden
- Công ty CP Bất động sản Eximland
- Địa chỉ:179EF Cách Mạng Tháng Tám, P. 5, Q. 3, TP.HCM
- Điện thoại:(08) 62646726
- Email: eximland@eximland.com.vn
- WebSite:http://eximland.com.vn
Công ty CP Bất động sản Eximlandđược thành lập với mục tiêu trở thành một trong những công ty kinh doanh bất động sản hàng đầu của Việt Nam.
Công ty CP Bất động sản Eximlandchuyên thực hiện những dự án đầu tư với sản phẩm đầu ra là các khu đô thị dân cư,các căn hộ chung cư,khu thương mại, khách sạn cũng như căn hộ cho thuê có chất lượng cao về thiết kế cũng như về tiện nghi, cùng với đó mang lại hiệu quả cao cho các cổ đông và đáp ứng được chiến lược đầu tư của công ty.
Lĩnh vực hoạt động:
- Kinh doanh bất động sản
- Dịch vụ môi giới, định giá, sàn giao dịch, tư vấn, đấu giá, quảng cáo, quản lý bất động sản
- Lập dự án đầu tư.
- Tư vấn đầu tư - đấu thầu
- Quản lý dự án
- Phá dỡ công trình. San lấp mặt bằng
- Thi công xây dựng công trình dân dụng, công nghiệp, giao thông, thủy lợi, cấp thoát nước, hệ thống điện.
Phương châm hoạt động:
- Đảm bảo chất lượng về thiết kế.
- Đảm bảo tiện nghi cuộc sống.
- Đảm bảo môi trường, cảnh quan xung quanh.
- Đảm bảo an toàn, an ninh.
Chiến lược phát triển:
- Tiếp tục mở rộng liên doanh liên kết với các đối tác chiến lược tập trung vào việc đầu tư, quản lý và khai thác các mặt bằng nhằm tạo nguồn quĩ nhà phục vụ cho cộng đồng dân cư với giá cả hợp lý.
- Xây dựng và phát triển hệ thống tiếp thị, phân phối và kinh doanh địa ốc tại các tỉnh khu vực phía Nam.
- Xây dựng kế hoạch quảng bá thương hiệu Công ty trong và ngoài nước.
- Xây dựng bộ máy điều hành và đội ngũ nhân viên chuyên nghiệp.
Tin rao thuộc dự án
Xem tin rao Bán đất nền dự án Khu dân cư Exim Garden
Dự án cùng khu vực
Khu đô thị mới Đông Tăng Long
Đường Nguyễn Duy Trinh, Phường Trường Thạnh, Quận 9, Hồ Chí Minh
Giá từ:11 triệu/m²
Khu dân cư Đại học Bách khoa
Đường Nguyễn Duy Trinh, Phường Phú Hữu, Quận 9, Hồ Chí Minh
Giá từ:9 triệu/m²
