Đăng tin

Việt Phú Garden

5
Việt Phú Garden
Tỷ lệ: 5 (93%) 68 votes
.Đánh giá của bạn
  • Loại hình phát triển Khu đô thị mới
  • Chủ đầu tư Công ty CP Đầu tư Xây dựng Bình Chánh (BCCI)
  • Địa chỉ Xã Phong Phú, Bình Chánh, Hồ Chí Minh
  • Tổng diện tích 870.000 m²
  • Mật độ xây dựng 56%
  • Bàn giao nhà Tháng 09/2014
  • Giá bán 11 triệu/m²
  • Quy mô dự án 2180 lô đất nền

Thông tin tổng quan Việt Phú Garden

Khu đô thị Việt Phú Garden với quy mô 87ha được quy hoạch tại phía Nam Đô Thị Nam Thành Phố thuộc Xã Phong Phú, Bình Chánh, Thành phố HCM. Việt Phú Garden được đầu tư bởi Công ty Cổ Phần Đầu tư Xây dựng Bình Chánh (BCCI).

Việt Phú Garden được xem là một trong những khu đô thị xanh của thành phố, được đầu tư lên đến 1.073.418.174.000 đồng, dự án được quy hoạch thành 3 khu:

- Khu A: Tổng DT khu đất là 196.953 m2: gồm 759 căn nhà liên kế vườn, 1 nhà trẻ mẫu giáo và 3 mảng công viên cây xanh thể dục thể thao.

- Khu B: Tổng diện tích khu đất: 326.618 m2: gồm 887 căn nhà liên kế vườn, 1 nhà trẻ mẫu giáo, 1 trường tiểu học, 2 trường trung học, 1 trung tâm thương mại, 5 mảng công viên cây xanh thể dục thể thao.

- Khu C: Tổng diện tích khu đất: 313.571 m2: gồm 664 căn nhà liên kế vườn, 1 chung cư 5 tầng với 640 căn hộ, 1 nhà trẻ mẫu giáo, 1 trạm y tế, 1 mảng công viên cây xanh thể dục thể thao.


Phối cảnh dự án Việt Phú Garden

Việt Phú Garden-0 Việt Phú Garden-1 Việt Phú Garden-2

Vị trí Việt Phú Garden:

Việt Phú Gardentọa lạc tại Xã Phong Phú, huyệnBình Chánh, Tp.Hồ Chí Minh. Dự án có vị trí đắc địa phía Bắc giáp đường Trịnh Quang Nghị (lộ giới 60m), phía Nam giáp đường Tân Liêm với KDC hiện hữu sầm uất (lộ giới 30m), phía Đông giáp quốc lộ 50 (lộ giới 40m), phía Tây tiếp giáp với nhánh sông Cần Giuộc, cùng với quy hoạch giao thông đồng bộ các tuyến đường vành đai và phê duyệt triển khai đường.

Song Hành (lộ giới 52m) của chính phủ trong tương lai sẽ là mấu chốt đẩy mạnh sự gia tăng giá trị bất động sản trong thời gian ngắn. Đồng thời, với vị trí này, Việt Phú Garden sẽ mang lại một môi trường sống trong lành và mát mẻ quanh năm.


Vị trí dự án Việt Phú Garden

Hạ tầng Việt Phú Garden:

Tiện ích:

- Trường học
- Hạ tầng kỹ thuật hoàn chỉnh
- Bưu điện – Trạm y tế
- Trung tâm thương mại dịch vụ
- Khu công viên cây xanh – thể dục thể thao
- Hệ thống an ninh thông minh quản lý toàn bộ trong và ngoài khu vực

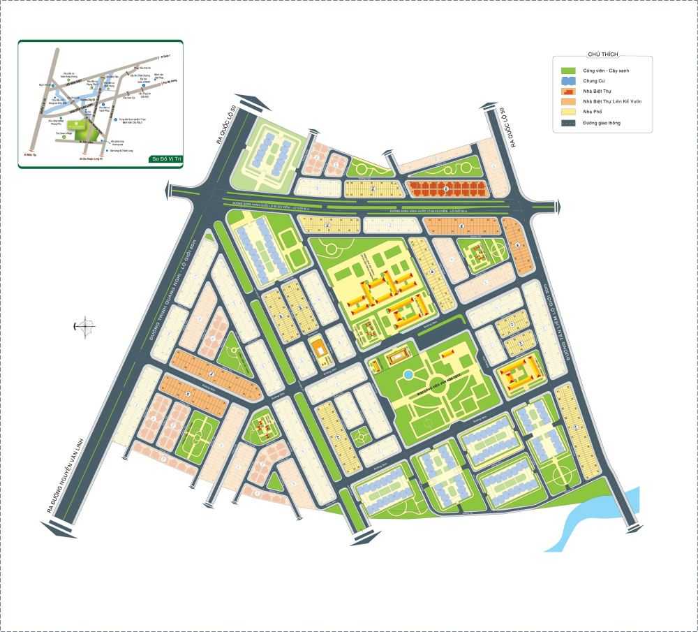
Sơ đồ tổng thể Việt Phú Garden

Việt Phú Garden

Mặt bằng Việt Phú Garden

  • Phân lô dự án
Phân lô dự án

THƯ VIỆN ẢNH Việt Phú Garden

Nhà phố Việt Phú Garden
Nhà phố Việt Phú Garden
Nhà phố Việt Phú Garden 1 Nhà phố Việt Phú Garden 2 Nhà phố Việt Phú Garden 3 Nhà phố Việt Phú Garden 4

Tiến độ quý III/2014 (ngày 30/09/2014) Việt Phú Garden

  • Dự án đã hoàn thiện và đưa vào sử dụng

    Dự án đã hoàn thiện và đưa vào sử dụng

  • Dự án đã hoàn thiện và đưa vào sử dụng

    Dự án đã hoàn thiện và đưa vào sử dụng

Lộ trình thanh toán Việt Phú Garden

Phương thức thanh toán tại dự ánViệt Phú Garden

Chủ đầu tư Việt Phú Garden

  • Công ty CP Đầu tư Xây dựng Bình Chánh (BCCI)
  • Địa chỉ:260/4 Kinh Dương Vương, Phường An Lạc, Q.Bình Tân, TP.HCM
  • Điện thoại:(08) 38753021
  • Email: info@bcci.vn
  • WebSite:www.bcci.com.vn

Công ty CP Đầu tư Xây dựng Bình Chánh (tên tiếng Anh: Binh Chanh Construction Investment Shareholding Company - BCCI), chuyên đầu tư, kinh doanh bất động sản. Trước năm 1999, BCCI là công ty 100% vốn nhà nước với tên gọi Công ty Đầu tư Xây dựng Bình Chánh.

Ngày 13/10/1999, UBND Tp.HCM quyết định chuyển thành công ty cổ phần theo Quyết định số 6103/QĐ-UB-KT với vốn điều lệ là 18.000.000.000 đồng. Lĩnh vực hoạt động của doanh nghiệp là kinh doanh bất động sản, thiết kế, thi công, san lắp mặt bằng, đầutư, xây dựng và kinh doanh cơ sở hạ tầng khu công nghiệp, cao ốc văn phòng cho thuê, dịch vụ bất động sản.

Các bước phát triển quan trọng của Công ty CP Đầu tư Xây dựng Bình Chánh:

- Năm 1998: Công ty triển khai hoạt động SXKD sang lĩnh vực đầu tư khu công nghiệp cụ thể là Khu công nghiệp Lê Minh Xuân
- Năm 1999: Cổ phần hóa chuyển từ doanh nghiệp nhà nước sang công ty cổ phần
- Năm 2003: Công ty phát triển sản phẩm mới nhằm phục vụ tối đa nhu cầu về đất và nhà ở của người dân đó là nhà cao tầng và cụm căn hộ chung cư Nhất Lan đã chính thức được ra đời
- Tháng 7/2005: BCCI tăng vốn điều lệ là 36 tỷ đồng nhằm bổ sung nguồn vốn cho các dự án mới như KĐC Phong Phú, khu Dân Cư Ấp 5 Phong Phú.
- Tháng 5/2006: BCCI tăng vốn điều lệ là 54 tỷ đồng nhằm bổ sung nguồn vốn cho các dự án mới như Chung cư và khu phố chợ Da Sà, khu dân cư Tân Tạo.
- Tháng 5/2007: BCCI tăng vốn điều lệ là 270 tỷ đồng nhằm bổ sung nguồn vốn cho các dự án mới như KDC Phong Phú 2, KCN Lê Minh Xuân (mở rộng).
- Tháng 06/2007: công ty CP Đầu tư Xây dựng
Bình Chánh chính thức trở thành công ty Đại Chúng.
- Tháng 11/2007: BCCI tăng vốn điều lệ là 542 tỷ đồng.nhằm bổ sung nguồn vốn cho các dự án mới như: Khu đô thị Tân Tạo ( 320ha), căn hộ Tân Tạo, An Lạc Plaza
- Tháng 5/2008: BCCI chính thức chuyển trụ sở văn phòng làm việc và khai trương sàn giao dịch BĐS
BCCI. Đánh dấu một bước ngoặc quan trọng trong thời kỳ hội nhập kinh tế.

Tin rao thuộc dự án

Xem tin rao Bán căn hộ chung cư Việt Phú Garden

Xem tin rao Bán nhà biệt thự, liền kề Việt Phú Garden

Xem tin rao Bán đất nền dự án Việt Phú Garden

Dự án cùng khu vực

Khu dân cư Greenlife - 13C

Khu dân cư Greenlife - 13C

Xã Phong Phú, Bình Chánh, Hồ Chí Minh

Giá từ:Đang cập nhật

Khu đô thị mới 13B Conic - Nam Sài Gòn

Khu đô thị mới 13B Conic - Nam Sài Gòn

Đại lộ nguyễn Văn Linh, xã Phong Phú, huyện Bình Chánh, Tp.HCM

Giá từ:Đang cập nhật

Dương Hồng Garden House

Dương Hồng Garden House

Đường Nguyễn Văn Linh, Xã Bình Hưng, Bình Chánh, Hồ Chí Minh

Giá từ:16.5 triệu/m²

Xem thêm

Dự án cùng phân khúc

Dương Hồng Garden House

Dương Hồng Garden House

Đường Nguyễn Văn Linh, Xã Bình Hưng, Bình Chánh, Hồ Chí Minh

Giá từ:16.5 triệu/m²

Khu Dân cư Trung Sơn

Khu Dân cư Trung Sơn

Xã Bình Hưng, Bình Chánh, Hồ Chí Minh

Giá từ:45 triệu/m²

Khu dân cư Him Lam 6A

Khu dân cư Him Lam 6A

Phố 24, Xã Bình Hưng, Bình Chánh, Hồ Chí Minh

Giá từ:22 triệu/m²

Khu dân cư 6B Intresco

Khu dân cư 6B Intresco

Xã Bình Hưng, Bình Chánh, Hồ Chí Minh

Giá từ:22 triệu/m²

Khu Biệt Thự Sông Ông Lớn

Khu Biệt Thự Sông Ông Lớn

Bình Chánh , Tp.HCM , Việt Nam

Giá từ:40 triệu/m²

An Hạ Lotus

An Hạ Lotus

Đường Tỉnh Lộ 10, Xã Phạm Văn Hai, Bình Chánh, Hồ Chí Minh

Giá từ:6.5 triệu/m²

Xem thêm

Tiện ích
Xem phong thủy theo tuổi
Tìm kiếm dự án BĐS