Khu Dân Cư Vĩnh Lộc A
- Loại hình phát triển Khu đô thị mới
- Chủ đầu tư Công ty Cổ phần Địa ốc An Nhân
- Địa chỉ ấp 3 và ấp 6 xã, Hương lộ 80, Xã Vĩnh Lộc A, Bình Chánh, Hồ Chí Minh
Thông tin dự ánKhu Dân cư Vĩnh Lộc A
Dự án Khu tái định cư Vĩnh Lộc A thuộc ấp 3 và ấp 6 xã Vĩnh Lộc A, huyện Bình Chánh, Tp.HCM.Khu dân cư tái định cư Vĩnh Lộc A chủ yếu phục vụ cho công tác tái định cư cho nhân dân trong vùng có đất đai, nhà nằm trong Khu công nghiệp Vĩnh Lộc bị giải tỏa, đápứng nhu cầu nhà ở ổn định cho người dân tái định cư và người lao động làm việc tại Khu công nghiệp Vĩnh Lộc.
Mục tiêu của dự án là phát triển khu vực với chức năng đô thị, phù hợp với tiến trình đô thị hóa xã Vĩnh Lộc A và đáp ứng cho nhu cầu lưu trú của gia đình công nhân, cán bộ công nhân viên, những người có múc thu nhập thấp tại khu vực.
- 01 Block chung cư 22 tầng căn hộ từ (tầng 11 - tầng 22) gồm có 144 căn hộ dành riêng cho người thu nhập thấp. Từ (Tầng 1- tầng 10) sẽ là khu vực Kinh doanh - Dịch vụ - Thương mại - Văn phòng.
- 02 Block chung cư tái định cư và kinh doanh gồm có 192 căn.
- 01 khu nhà liên kế 3 tầng tái định cư và kinh doanh 170 căn hộ, trên quy mô khu đất có tổng diện tích 46.774,3m2.

Phối cảnh dự ánKhu tái định cưVĩnh Lộc A
Vị trí Khu Dân Cư Vĩnh Lộc A:
Khu Dân Cư Vĩnh Lộc Anằm trên địa phậnấp 3 và ấp 6 xã Vĩnh Lộc A, huyện Bình Chánh, Tp.HCM. Các mặt giáp giới như sau:
+ Phía Đông giáp khu dân cư hiện hữu – đường Quách Điêu.
+ Phía Tây giáp đường sư 9 cặp gần rạch Cầu Suối.
+ Phía Nam giáp thổ cư và ruộng trống.
+ Phía Bắc giáp thổ cư và ruộng trống.
Hạ tầng Khu Dân Cư Vĩnh Lộc A:
Khu dân cư tái định cư Vĩnh Lộc Asẽ được bố trí đầy đủ khu văn phòng, trung tâm thương mại, dịch vụ như chỗ đậu xe, trạm y tế, trường học mầm non (100 trẻ), phòng sinh hoạt cộng đồng, siêu thị, khu công viên cây xanh - sân TDTT, khu công trình kỹ thuật (trạm xử lý nước).
Tổng vốn đầu tư dự kiến: 650 tỷ đồng.

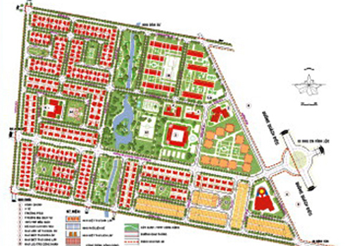
Quy hoạch khu dân cư - tái định cư Vĩnh Lộc A
Quy hoạch giao thông
Dựa vào hình dáng ranh khu đất, mạng lưới đường giao thông đối ngoại, mạng lưới đường khu dân cư – tái định cư Vĩnh Lộc A được thiết kế theo các hướng song song và vuông góc với ranh phía Nam tạo trong khu thiết kế những lô đất tương đối vuông vức dễ xây dựng và sử dụng có hiệu quả.
Quy hoạch thoát nước mưa
Hệ thống thoát nước mưa cho khu dân cư được thiết kế tách riêng với nước thải sinh hoạt. Hệ thống thoát nước mưa được thiết kế hệ thống kín bằng cống tròn bê tông cốt thép xả trực tiếp ra mương thoát nước hiện hữu ở giữa khu vực thiết kế.
Khu vực thiết kế được chia thành nhiều lưu vực nhỏ với các tuyến ngắn để thoát nước nhanh, tiết diện cống nhỏ, giảm độ sâu chôn cống.
Cống được thiết kế đặt trên hè chạy dọc theo các tuyến đường để thu nước từ công trình và mặt đường thoát ra sông, rạch theo hướng ngắn nhất.
Quy hoạch cấp nước
Trên đường Quách Điêu sẽ có 2 ống cấp nước của Thành phố chạy qua, lấy nước từ Nhà máy nước sông Sài Gòn và Nhà máy nước Kênh Đông.
Trước mắt dùng nguồn nước ngầm, khoan giếng tại chổ, xử lý đạt tiêu chuẩn rồi bơm vào mạng lưới. Tương lai nguồn nước cấp cho khu quy hoạch là nguồn nước máy Thành phố, lấy từ đường Quách Điêu, từ Nhà máy nước sông Sài Gòn và Nhà máy nước Kênh Đông về.
Quy hoạch cấp điện
Nguồn cấp điện cho khu vực quy hoạch là tuyến trung thế 22KV của lưới điện địa phương (từ trạm 110KV Vĩnh Lộc đến).
Toàn khu có 12 trạm hạ thế 22-15/0,4KV, tổng dung lượng 5.050KVA. Các trạm đều là loại trạm compact hoặc trạm trong nhà. Các tuyến trung, hạ thế đều là cáp ngầm. Dọc theo các tuyến cáp ngầm cung cấp điện có đặt các tủ cáp dùng để nối cáp, rẽ nhánh cáp và chờ đấu nối điện vào các hạng mục công trình được xây dựng sau này.
Các mạch điện hạ thế đều được đóng cắt và bảo vệ bằng các ngắt điện tự động (CB) đặt trong tủ điện chính tại trạm hạ thế, tại đây cũng có đặt các thiết bị đo lường như Ampere kế, Volt kế, biến dòng, Watt kế…
Quy hoạch hệ thống thông tin liên lạc
Hệ thống thông tin liên lạc cho Khu dân cư tái định cư Vĩnh Lộc A là một hệ thống được ghép nối vào mạng viễn thông của Bưu Điện TP.Hồ Chí Minh. Hệ thống nội bộ ở đây sẽ là một mạng cáp điện thoại đáp ứng đầy đủ các yêu cầu về viễn thông cho khu vực.
Quy hoạch tổng hợp đường dây đường ống
Theo qui phạm tất cả các đường ống đều phải đặt dưới vỉa hè. Khoảng cách giữa mép ngoài đường ống với nhau phải đảm bảo khoảng cách tối thiểu cho phép, tim cây và tim cột điện 1,5 – 2m.
Quy hoạch thoát nước bẩn – vệ sinh đô thị
Theo quy hoạch chung thoát nước bẩn thành phố, tại các khu vực xây dựng mới phải xây dựng 2 hệ thống thoát nước riêng: nước mưa chảy thẳng ra sông và nước thải bẩn chảy về khu xử lý, làm sạch trước khi xả ra ngoài.
Hệ thống thoát nước thải của khu quy hoạch được thiết kế gồm hệ thống cống ngầm thoát nước thải để thu gom nước thải đưa về trạm xử lý. Nước thải được làm sạch đạt tiêu chuẩn rồi xả ra mương thoát nước mưa.
Nước thải từ các công trình được lắng sơ bộ bằng bể tự hoại trước khi thoát vào cống thoát nước thải bên ngoài. Tất cả các công trình đều phải có bể tự hoại 3 ngăn xây đúng quy cách để xử lý nước thải sơ bộ trước khi thoát vào cống.
Rác hộ dân được thu gom tận nhà. Rác của các công trình công cộng được tập trung trong các thùng đặt tại các góc đường, tại các bãi xe, và trong các khu dịch vụ, sau đó được Công ty quản lý CTCC đến thu gom và đưa đến khu xử lý rác của thành phố.
Quy hoạch cây xanh và công trình công cộng
Với qui mô tổng diện tích đất quy hoạch cho cây xanh – mặt nước và TDTT ở khu dân cư hơn 6ha (chiếm tỷ lệ 15,58%), trong khi chưa tính đến phần đất dành cho cây xanh của các công trình xây dựng cụm nhà ở (mật độ xây dựng theo quy hoạch là 30 – 40% diện tích quy hoạch cụm).
Sơ đồ tổng thể Khu Dân Cư Vĩnh Lộc A
Mặt bằng Khu Dân Cư Vĩnh Lộc A
- Mặt bằng phân lô dự án
THƯ VIỆN ẢNH Khu Dân Cư Vĩnh Lộc A
Tiến độ quý IV/2016 (ngày 31/12/2016) Khu Dân Cư Vĩnh Lộc A
Chủ đầu tư Khu Dân Cư Vĩnh Lộc A
- Công ty Cổ phần Địa ốc An Nhân
- Địa chỉ:Số 10 Đường 4 Tỉnh Lộ 25B, P.Bình Trưng Tây, Q.2, Tp.Hồ Chí Minh
- Điện thoại:0933200811,0837423712
- Email: info@annhan.vn
- WebSite:www.annhan.vn
CÔNG TY CỔ PHẦN SÔNG ĐÀ AN NHÂN
Lời giới thiệu tri ân tới khách hàng!
Công ty cổ phần Sông Đà An Nhân (Song Đa An Nhan Corporation) chính thức khai trương và đi vào hoạt động vào ngày 08/11/2008. Ra đời trong bối cảnh thị trường bất động sản cùng các dịch vụ về thiết kế, xây dựng nói riêng và nền kinh tế Việt Nam nói chung đang chuyển đổi cơ cấu trước thềm hội nhập vào WTO một cách khó khăn và gặp nhiều thách thức,Song Đa An Nhân Corporation cũng không ngoại lệ, đã gặp không ít khó khăn và thử thách trước những biến động không nhỏ trong nền kinh tế thị trường thời kỳ hội nhập quốc tế.
Đứng trước những thách thức mới, những cơ hội mới, ban lãnh đạo cùng toàn thể cán bộ nhân viên của Song Đa An Nhân Corporation đoàn kết một lòng, quyết tâm xây dựng và phát triển vững mạnh thương hiệu An Nhân trong hiện tại và tương lai. Song Đa An Nhân Corporation tự hào có đội ngũ lãnh đạo với tầm hiểu biết sâu rộng, trí tuệ và dày dặn kinh nghiệm thực tiễn, kết hợp cùng với một tập thể cán bộ , nhân viên tài năng dựa trên nền tảng năng lực thực tế, nhiệt huyết, lòng tận tâm với công việc`.
Với một tiêu chí vững bền theo năm tháng :“An Nhân, Uy tín làm nên thành công” sự hài lòng của khách hàng là nền tảng cho mọi thành công của Song Đa An Nhân Corporation, Song Đa An Nhân Corporation mong muốn luôn là thương hiệu uy tín mang đến cho khách hàng những sản phẩm, dịch vụ tốt nhất. Xin trân trọng giới thiệu tới quý khách hàng 5 ngành nghề hoạt động uy tín và chất lượng tốt nhất của công ty cổ phần Sông Đà An Nhân:
- Kinh doanh Bất Động Sản;
- Thiết Kế Kiến Trúc - Quy Hoạch Kiến Trúc;
- Xây dựng – Thi công công trình;
- Tư vấn pháp lý – Tư vấn du học, du lịch;
- Thiết Kế nội, ngoại thất – Thi công nội, ngoại thất.


Công ty cổ phần Sông Đà An Nhân xin gửi lời chào kính trọng và lời chúc thành công đến với tất cả quý khách.
Xin chân thành cảm ơn.
Tin rao thuộc dự án
Xem tin rao Bán căn hộ chung cư Khu Dân Cư Vĩnh Lộc A
Xem tin rao Bán nhà riêng, ngõ, hẻm Khu Dân Cư Vĩnh Lộc A
Xem tin rao Bán nhà biệt thự, liền kề Khu Dân Cư Vĩnh Lộc A
Xem tin rao Bán đất nền dự án Khu Dân Cư Vĩnh Lộc A
Xem tin rao Cho thuê căn hộ chung cư Khu Dân Cư Vĩnh Lộc A
Dự án cùng khu vực
Khu đô thị mới 13B Conic - Nam Sài Gòn
Đại lộ nguyễn Văn Linh, xã Phong Phú, huyện Bình Chánh, Tp.HCM
Giá từ:Đang cập nhật
Dương Hồng Garden House
Đường Nguyễn Văn Linh, Xã Bình Hưng, Bình Chánh, Hồ Chí Minh
Giá từ:16.5 triệu/m²
