Biên Hòa Center City
- Loại hình phát triển Khu đô thị mới
- Chủ đầu tư Công ty CP Đồng Nai
- Địa chỉ Đường Nguyễn Thị Tồn, Phường Bửu Hòa, Biên Hòa, Đồng Nai
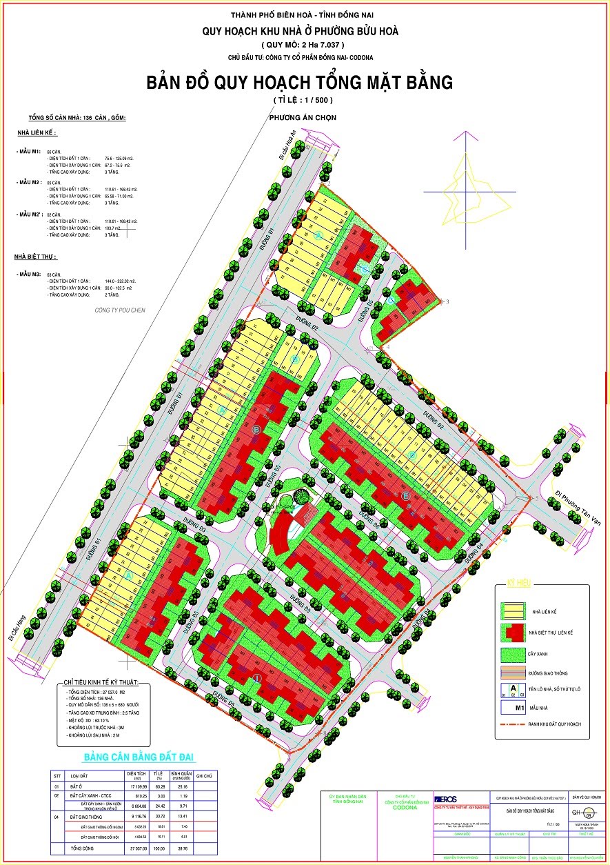
- Tổng diện tích 27.087 m²
- Mật độ xây dựng 62%
- Quy mô dự án 150 lô đất nền nhà phố, biệt thự
Thông tin dự ánBiên Hòa Center City
Biên Hòa Center Citylà dự án khu dân cư được đầu tư Công ty CP Đồng Nai với quy mô150 lô đất nền nhà phố, biệt thựtrên khu đất quy hoạch rộng2,7 ha. Dự án tọa lạc ngay vị trí đắc địa tại TP. Biên Hòa, Đồng Nai, nơi kết nối trực tiếp vớiđường Bùi Hữu Nghĩa và dẫn thẳng đến trung tâm TP. BiênHòa cũng như Tp.HCM, Bình Dương.
Cùng với đó, chất lượng cuộc sống của cư dân nơi đây cũng được đảm bảo với hệ thống các tiện ích được đầu tư một cáchbài bản, hoàn chỉnh như khu thương mại dịch vụ, công viên cây xanh,trường học, chợvà rất nhiềutiện nghihiện đại khác xung quanh khu dân cư. Biên Hòa Center City được kỳ vọngsẽ mang đến chốn an cư hoàn hảo vớitiềm năng sinh lời lớn cho cácchủ nhân tương lai.
- Tên dự án:Biên Hòa Center City
- Chủ đầu tư:Công ty CP Đồng Nai - CODONA
-Vị trí : Nguyễn Thị Tồn, Phường Bửu Hòa, TP. Biên Hòa, Đồng Nai
- Diện tích khu đất:27.087m2
-Diện tích cây xanh: 61.025m2
- Số lượng sản phẩm: 150 lô đất nền
+Diện tích biệt thự: 140-252m2/căn
+ Diện tích nhà phố: 84-131m2/căn
- Mật độ xây dựng: 62%
-Năm khởi công Năm khởi công: 2017
-Năm hoàn thành Năm hoàn thành: 2018

Bản đồ quy hoạch tổng thể dự án Biên Hòa Center City
Vị trí Biên Hòa Center City:
Biên Hòa Center City tọa lạc ngaymặt tiền đường Nguyễn Thị Tồn, phường Bửu Hòa, TP. Biên Hòa, tỉnh Đồng Nai.

Vị trí dự án Biên Hòa Center City
Hạ tầng Biên Hòa Center City:
Bên cạnh hệ thống tiện ích nội khu hoàn thiện, cơ sở hạ tầng đồng bộ với đường trải nhựa lớn, cây xanh, vỉa hè sạch đẹp,Khu đô thị Biên Hòa Center City còncó kết nối thuận lợi đến các tiện nghi cần thiết cho cuộc sống.
- Ngay gần UBND xã Hóa An, chợ Hóa An,trường tiểu học Hóa An
- Gầncông viên Nguyễn Văn Trị,trường Đại học Lạc Hồng, khu du lịch sinh thái Bửu Long, chợ đêm Biên Hùng, Bệnh viện Quốc tế Đồng Nai,…
- Kết nối dễ dàng đến hệ thống tiện ích hiện đại củaTp.HCM như làng đại học Quốc gia Tp.HCM, ga metro, Khu công nghệ cao quận 9, khu du lịch Suối Tiên, đại học Fulbright,sân golf Park,Bệnh viện Ung Bướu 2, khu du lịch Đền Hùng, bến xe Miền Đông mới,…

Kết nối tiện ích dự án Biên Hòa Center City
Sơ đồ tổng thể Biên Hòa Center City
THƯ VIỆN ẢNH Biên Hòa Center City
Tiến độ quý III/2017 (ngày 10/10/2017) Biên Hòa Center City
Chủ đầu tư Biên Hòa Center City
- Công ty CP Đồng Nai
- Địa chỉ:Đường 2, Khu công nghiệp Biên Hòa I, phường An Bình, TP. Biên Hòa, Đồng Nai
- Điện thoại:(061) 3836275
Công ty CP Đồng Nai là công ty 100% vốn góp của cá nhân, kinh doanh đa ngành nghề, xuất - nhập khẩu các sản phẩm bột giấy, giấy.
Ngành nghề kinh doanh
- Nguyên liệu sản xuất giấy
- Sản phẩm làm từ giấy
- Sản xuất giấy và phân phối giấy
Sản phẩm dịch vụ
- Bao bì carton
- Bột giấy
- Dăm mảnh
- Gỗ nguyên liệu
- Thùng Carton
- Tập học sinh
