Kinh Do Building
- Loại hình phát triển Cao ốc văn phòng
- Chủ đầu tư Công ty TNHH một thành viên Kinh Đô
- Địa chỉ 292 Tây Sơn, Phường Trung Liệt, Đống Đa, Hà Nội
- Bàn giao nhà 2010
- Quy mô dự án 1 block 8 tầng
Thông tin chung cư Kinh Do Building
Tọa lạc tại 292 Tây Sơn, Kinh Đô Building là tòa nhà văn phòng có vị trí hết sức thuận lợi. Bạn có thể dễ dàng đến địa điểm này qua các trục đường chính như Nguyễn Trãi - Tây Sơn, đường Láng, Trường Chính, Thái Hà - Chùa Bộc hay Nguyễn Lương Bằng. Với ưu thế như vậy, Kinh Đô Buidling thực sự là địa điểm làm việc lý tưởng cho các doanh nghiệp.
Tòa nhà Kinh Đô cao 8 tầng nổi và 1 tầng hầm với tổng diện tích cho thuê 7200m2, trong đó diện tích một sàn là 900m2.

Dự ánKinh Do Building
Vị trí Kinh Do Building:
Kinh Đô Building là tòa nhà văn phòng trên phố Tây Sơn, nằm giữa trục nối trung tâm Hà Nội và khu đô thị mới phía Tây Hà Nội. Từ vị trí tòa nhà văn phòng có thể dễ dàng đi tới các tổ chức của chính phủ, các trung tâm y tế, trường đại học, nhà hàng và nhiều dự án cao ốc văn phòng có quy mô như Mipec Tower, tòa Nhà Oriental Tower, Phan Anh Building, Tòa Nhà Văn Phòng Tad...
Hạ tầng Kinh Do Building:
Tiện ích nội khu
- 2 tháng máy OTIS (Mỹ) - trọng tải 630kg
- Hệ thống điều hòa bán trung tâm nhập nguyên chiếc từ Mỹ Công nghệ VRV - đảm bảo công suất lạnh tối thiểu 720 BTU/m2
- Hệ thống điện dự phòng: 2 máy phát điện nhập nguyên chiếc, công suất (1000 KVA) Đảm bảo cung cấp 100% khi mất điện
- Hệ thống phòng cháy chữa cháy an toàn, đầy đủ
- Bãi đỗ xe rộng: 350m2
- Diện tích văn phòng cho thuê rất linh hoạt: 54m2, 112m2, 120m2, 200m2… đáp ứng quy mô sử dụng của tất cả các công ty vừa và nhỏ hoặc các tổ chức doanh nghiệp có quy mô lớn
- Tòa nhà được thiết kế theo tiêu chuẩn văn phòng hạng B, vì vậy các trang thiết bị trong tòa nhà luôn được đảm bảo đáp ứng tối đa nhu cầu sử dụng của các doanh nghiệp
- 1 tầng hầm để xe có diện tích 630m2 và diện tích xung quanh tòa nhà đáp ứng không giới hạn lượng xe của cán bộ công nhân viên làm việc tại tòa nhà và khách hàng đối tác ra vào giao dịch
Tiện ích ngoại khu
Vị trí giao thông thuận lợi, có tần suất đi lại đông đúc, cơ sở hạ tầng tốt và nằm trong khu vực phát triển với nhiều trung tâm thương mại và cửa hàng buôn bán sầm uất. Một số tiện ích trong khu vực:
- Ngân hàng: VP Bank, Sea Bank...
- Trung tâm thương mại: Parkson, Pico Mall, Hapro
- Siêu thị điện máy Trần Anh
- Trường Đại học: Thủy Lợi, Ngân Hàng, Công Đoàn
Sơ đồ tổng thể Kinh Do Building
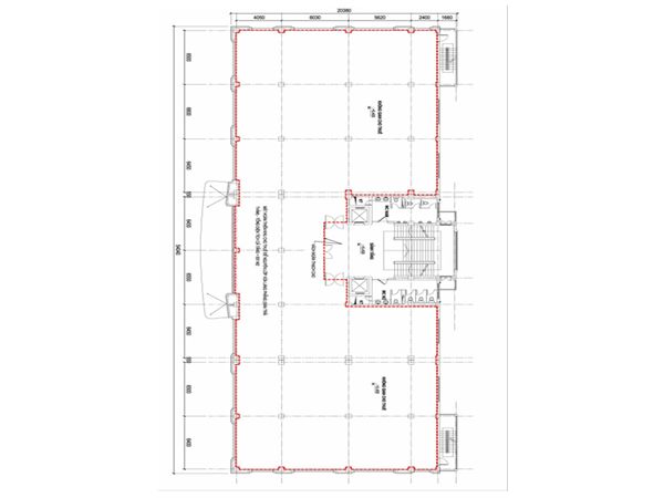
Mặt bằng Kinh Do Building
- Tầng điển hình
THƯ VIỆN ẢNH Kinh Do Building
Tiến độ quý IV/2010 (ngày 31/12/2010) Kinh Do Building
Lộ trình thanh toán Kinh Do Building
Giá và phí dịch vụ:
- Giá thuê: 20 USD/m2/tháng (đã bao gồm VAT và phí dịch vụ)
- Phí dịch vụ: 5 USD/m2 (Đã bao gồm điện điều hòa và phí quản lý chung, không miễn phí gửi xe)
- Các khoản phí khác gồm:
+ Tiền điện sử dụng trong diện tích thuê
+ Chi phí viễn thông
+ Điện điều hòa và các dịch vụ ngoài giờ làm việc
+ Phí để xe
+ Biển hiệu
+ Phòng Hội thảo có sức chứa hơn 100 người
Chủ đầu tư Kinh Do Building
- Công ty TNHH một thành viên Kinh Đô
- Địa chỉ:Số 292, phố Tây Sơn, phường Trung Liệt, quận Đống Đa, TP.Hà Nội
- Điện thoại:(04) 35115833
- Email: yame6721@gmail.com
- WebSite:http://www.kinhdore.vn
Công ty TNHH một thành viên Kinh Đô (đơn vị tiền thân là Công ty Kinh Đô) là doanh nghiệp trực thuộc Liên đoàn Lao động TP. Hà Nội. Công ty có trụ sở đặt tại số 292, phố Tây Sơn, phường Trung Liệt, quận Đống Đa, TP.Hà Nội.
Quá trình hình thành và lịch sử phát triển:
- Ngày 13/01/1993, UBND TP. Hà Nội ra quyết định số 132/QĐ- UBND về việc thành lập Công ty TNHH Kinh Đô.
- Ngày 23/3/1995, UBND TP. Hà Nội ra quyết định số 623/QĐ-UB về việc đổi tên Công ty TNHH Kinh Đô thành Công ty Kinh Đô.
- Ngày 10/11/2005, Liên đoàn Lao động TP. Hà Nội và UBND TP. Hà Nội ra quyết định số 7479/QĐ-UB về việc sáp nhập Khách sạn Du lịch Công đoàn Hà Nội vào Công ty Kinh Đô.
- Ngày 24/11/2006, Tổng Liên đoàn Lao động Việt Nam ra quyết định số 1747/QĐ-TLĐ về việc cho phép Công ty Kinh Đô được chuyển đổi thành Công ty TNHH một thành viên Kinh Đô
Công ty hoạt động trong lĩnh vực: cho thuê, bán nhà - căn hộ.Trải qua quá trình hình thành và phát triển, đến nay,công ty TNHH một thành viên Kinh Đô đã trở thành một địa chỉ uy tín với khách hàng.
Tin rao thuộc dự án
Xem tin rao Cần thuê văn phòng Kinh Do Building
Dự án cùng khu vực
VCCI Tower - số 9 Đào Duy Anh
09 Đào Duy Anh, Phường Phương Liên, Đống Đa, Hà Nội
Giá từ:Đang cập nhật