Hoàng Anh River View
- Loại hình phát triển Căn hộ, Chung cư
- Chủ đầu tư Công ty CP Hoàng Anh Gia Lai
- Địa chỉ 37 Nguyễn Văn Hưởng, Phường Thảo Điền, Quận 2, Hồ Chí Minh
- Tổng diện tích 16.230 m²
- Mật độ xây dựng 27%
- Giá bán 17 triệu/m²
- Quy mô dự án Bao gồm 3 block nhà cao 25 tầng với 580 căn hộ
Thông tin chung cư Hoàng Anh River View
Hoàng Anh Riverview nằmngay sát cầu Sài Gòn, cách trung tâm quận 1 khoảng 5 km. Khi cầu Thủ Thiêm được đưa vào sử dụng, khoảng cách từ trung tâm thành phố tới khu đô thị mới này sẽ được rút ngắn hơn.
Dự án tọa lạc trênkhu đất có diện tích 16.230m2với mật độ xây dựng 27%, tổng diện tích mặt sàn xây dựng là 112.000m2, bao gồm 3 block nhà cao 25 tầngvới 580 căn hộ, cảnh quan thông thoáng. Các căn hộ đều có diện tích trên 100m2, được bố trí 3 đến 4 phòng ngủ.
Ngoài ra, khu nhà được trang bị đồng bộ các hạng mục xã hội phù hợp cho một công trình tiêu chuẩn cao cấp như hồ bơi, sân tennis, phòng tập thể hình, khu xông hơi, bãi đỗ xe rộng rãi đảm bảo cho mỗi căn hộ có một nơi để ôtô, khu vui chơi cho trẻ em và khu sân vườn, cảnh quan.

Phối cảnh dự án Hoàng Anh River View
Vị trí Hoàng Anh River View:
Dự án Hoàng Anh River View tọa lạc tại số 37 Nguyễn Văn Hưởng, Phường Thảo Điền, quận 2, Tp.HCM.

Vị trí dự án Hoàng Anh River View
Hạ tầng Hoàng Anh River View:
Hạ tầng - tiện ích tạiHoàng Anh River View:
- Hồ bơi
- Sân tennis
- Phòng tập thể hình
- Khu xông hơi
- Bãi đỗ xe rộng rãi đảm bảo cho mỗi căn hộ có một nơi để ôtô
- Khu vui chơi cho trẻ em và khu sân vườn, cảnh quan

Sơ đồ tổng thể Hoàng Anh River View
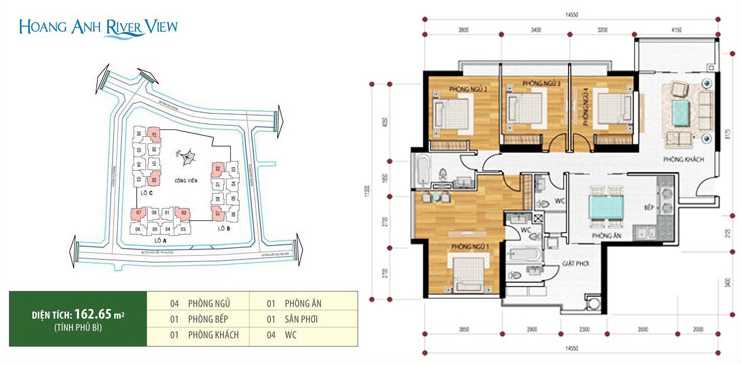
Mặt bằng Hoàng Anh River View
- Tầng điển hình
Các căn hộ tầng điển hình
THƯ VIỆN ẢNH Hoàng Anh River View
Tiến độ quý III/2016 (ngày 09/08/2016) Hoàng Anh River View
Lộ trình thanh toán Hoàng Anh River View
- Khách hàng khi mua căn hộ chung cư Hoàng Anh River View sẽ được hưởng những chính sách ưu đãi từ chủ đầu tư.
- Tiến độ thanh toán chia làm các đợt sau:
- Đặt cọc 100 triệu đồng.
- Lần 1: Sau 15 ngày, kí hợp đồng chính thức đóng 35%.
- Lần 2: Sau 10 ngày kể từ lần 1 đóng 35%.
- Lần 3: Bàn giao nhà đóng 25%.
- Lần 4: Bàn giao chủ quyền nhà đóng 5% còn lại.
Chủ đầu tư Hoàng Anh River View
- Công ty CP Hoàng Anh Gia Lai
- Địa chỉ:15 Trường Chinh, Phù Đổng, Plei Ku, Gia Lai, Việt Nam
- Điện thoại:0592222249
- Email: contact@hagl.com.vn
- WebSite:www.hagl.com.vn
Khởi nghiệp từ năm 1990 từ một phân xưởng nhỏ chuyên đóng bàn ghế cho học sinh xã Chưhdrông, Thành phố Pleiku, tỉnh Gia Lai do Ông Đoàn Nguyển Đức trực tiếp điều hành. Đến nay, Hoàng Anh Gia Lai đã đạt được bước tiến mạnh mẽ và trở thành tập đoàn tư nhân hoạt động trong nhiều lĩnh vực khác nhau. Các sản phẩm như đồ gỗ nội, ngoại thất cao cấp; đá granite ốp lát tự nhiên; mủ cao su đã có mặt hầu khắp các thị trường Châu Âu, Châu Mỹ, Châu Á, Australia, New Zealand…Các văn phòng đại diện được thiết lập tại một số nước nhằm tạo điều kiện cho kháchhàng có thể tiếp cận, giao dịch với tập đoàn một cách thuận tiện và nhanh chóng nhất. Bên cạnh việc duy trì và mở rộng thị trường xuất khẩu, Hoàng Anh Gia Lai Group đang phát triển thị trường trong nước bằng việc hình thành hệ thống siêu thị đồ gỗ, đá granite với qui mô lớn tại 5 trung tâm đô thị chính Hà Nội, Tp.HCM, Hải Phòng, Đà Nẵng, Cần Thơ.
Trong nhiều năm liền Hoàng Anh Gia Lai Group được đánh giá là một trong những nhà sản xuất đồ gỗhàng đầu cả nước và được người tiêudùng bình chọn “Hàng Việt Nam chất lượng cao”.
Với lợi thế về vốn, nguồn nhân lực, nguyên vật liệu dồi dào và thương hiệu mạnh, Hoàng Anh Gia Lai Group tập trung mở rộng đầu tư sang lĩnh vực kinh doanh địa ốc như xây dựng trung tâm thương mại, căn hộ cao cấp, văn phòng cho thuê cùng với sự ra đời của một chuỗi khách sạn, khu nghỉ mát tiêu chuẩn 4 sao, 5 sao tại Tp.HCM, Đà Lạt, Đà Nẵng, Nha Trang, Gia Lai, Quy Nhơn…nhằm khai thác tiềm năng du lịch đầy hứa hẹn của đất nước.
Việc sở hữu đội bóng danh tiếng Hoàng Anh Gia Lai với những thành công vang dội trong thời gian qua đã thu hút sự quan tâm của đông đảo người yêu thích bóng đá. Hình ảnh của đội bóng là công cụ xây dựng và quảng bá thương hiệu rất hiệu quả.
Dưới sự lãnh đạo của ông Đoàn Nguyên Đức cùng sự đồng tâm hiệp lực của đội ngũ công nhân viên giàu kinh nghiệm, tận tụy, giỏi tay nghề đã giúp Hoàng Anh Gia Lai Group phát triển và lớn mạnh không ngừng. Nếu số công nhân viên khi mới thành lập nhà máy khoảng 200 người thì đến nay nhân sự của Hoàng Anh Gia Lai đã hơn 7000 người. Nếu doanh thu năm đầu tiên là 200 tỷ thì năm 2005 doanh thu đã đạt 1.200 tỷ đồng.
Chiến lược phát triển của tập đoàn là xây dựng quy trình kinh doanh khép kín trên cơ sở liên kết dọc các ngành nghề như: sản xuất các loại đồ gỗ, chế tác đá granite, xưởng lắp ráp và thi công nhôm kính, có xí nghiệp xây lắp, xây dựng, kinh doanh bất động sản…nhằm hạn chế tối thiểu rủi ro và tăng hiệu quả sản xuất kinh doanh.
Từ nay đến năm 2010, Hoàng Anh Gia Lai Group phấn đấu sẽ là một trong những tập đoàn cung cấp sản phẩm căn hộ cao cấp và trung tâm thương mại hàng đầu tại Việt Nam đồng thời mở rộng hoạt động sang các nước trong khu vực Đông Nam Á.
Ngành nghề kinh doanh
- Trồng, khai thác và chế biến các sản phẩm từ cây cao su
- Khai thác và chế biến khoáng sản
- Xây dựng và kinh doanh căn hộ cao cấp và văn phòng cho thuê
- Đầu tư xây dựng và khai thác thủy điện
- Sản xuất và phân phối đồ gỗ, đá granite
- Các hoạt động hỗ trợ khác
Những dự án làm chủ đầu tư:
+ Dự án đã hoàn thành
Căn hộ Lê Văn Lương
Căn hộ Pleiku
Căn hộ Trần Xuân Soạn
Căn hộ New Sài Gòn
Căn hộ Hoàng Anh Đầm Sinh Thái Đống Đa Quy Nhơn.
+ Dự án sắp thi công
Khu phúc hợp Quận 9
Căn hộ Incomex
Trung tâm thương mại Q7
Dự án Khu nhà ở Tân Phong
Chợ Lớn Plaza
+ Dư án đang thi công
Căn hộ cao cấp Bàu Thạc Gián - Đà Nẵng
Hoàng Anh River View
Hoàng Anh Gia Lai BIDV
Căn hộ Phú Hoàng Anh
Căn hộ cao cấp HAGL An Tiến
Văn phòng đại diện , chi nhánh tại Việt Nam
1:Chi nhánh nhà máy gỗ xuất khẩu Hoàng Anh Gia lai
Địa chỉ: Xã ChưHdrông, thành phố Pleiku, tỉnh Gia Lai
Điện thọai:059 3820288/ Fax; 0593820007
2: Chi nhánh nhà máy gỗ nội thất Hoàng Anh Gia Lai
Địa chỉ: Xã ChưHdrông, thành phố Pleiku, tỉnh Gia Lai
Điện thọai: 0593847587/ Fax: 0593847586
3: Chi nhánh nhà máy gỗ Hoàng Anh Quy Nhơn:
Địa chỉ: Khu công nghiệp Phú Tài, thành phố Quy Nhơn, tỉnh Bình Định
Điện thọai: 056 3741177 / Fax: 056 3841992
4: Chi nhánh nhà máy gỗ Hoàng Anh Sài Gòn
Địa chỉ: Lô E1 đường A, KCN Bình Chiểu, phường Bình Chiểu, quận Thủ Đức, TP.HCM
Điện thọai: 088 38979884
5: Chi nhánh nguyên vật liệu Hoàng Anh Gia Lai
Địa chỉ:Xã ChưHdrông, thành phố Pleiku, tỉnh Gia Lai
Điện thọai: 059 3847587 / Fax : 059 3847586
6: Chi nhánh nhà máy đá Granite Hoàng Anh Gia Lai
Địa chỉ: Xã ChưHdrông, thành phố Pleiku, tỉnh Gia Lai
Điện thọai : 059 3847339 / Fax: 059 3847298
7: Chi nhánh xí nghiệp xây lắp An Phú
Địa chỉ:Xã ChưHdrông, thành phố Pleiku, tỉnh Gia Lai
Điện thọai : 059 2211725/ Fax: 059 3820591
8: Chi nhánh khách sạn Hoàng Anh Gia Lai
Địa chỉ: 01 Phù Đổng, phường Hội Phú, thành phố Pleiku, Gia Lai
Điện thoại: 059 3718450- 3718459 / Fax: 059 3718457
9: Chi nhánh Công ty cổ phần Hoàng Anh Gia Lai tại Lâm Đồng
Địa chỉ: Số 03 Nguyễn Du, phường 9, thành phố Đà Lạt, tỉnh Lâm Đồng
Điện thoại : 063 3810826 / Fax: 063 3549036
10: Chi nhánh công ty cổ phần Hoàng Anh Gia Lai tại Đà Nẵng
Địa chỉ: Số 01 Nguyễn Văn Linh, quận Hải Châu, Tp.Đà Nẵng
Điện thoại : 051 3222 33 55 / Fax : 063 3549036
11: Chi nhánh công ty cổ phần Hoàng Anh Gia Lai tại Quy Nhơn
Địa chỉ; Số 01 Hàn Mặc Tử, phường 09, thành phố Quy Nhơn, tỉnh Bình Định.
Điện thoại : 056 3747100/ Fax: 056 3747111
12:Văn phòng đại diện Công ty cổ phần Hoàng Anh Gia Lai tại Tp.HCM
Địa chỉ: Tòa nhà HAGL Group, lầu 2, phòng 203-204-205, 7/1 Thành Thái, phường 14, quận 10, Tp.HCM
Điện thọai: 08 38669068/ Fax: 08 38669212
13: Công ty cổ phần thể thao Hoàng Anh Gia Lai
Địa chỉ: Tầng 11 , HAGL Hotel Pleiku số 1 Phù Đổng, phường Hội Phú, thành phố Pleiku, tỉnh Gia Lai.
Điện thọai:0593 847 300 / Fax :0593 847 300
14: Sàn giao dịch bất động sản Hoàng Anh Gia Lai
Địa chỉ :Tòa nhà HAGL Group, 7/1 Thành Thái, phường 14, quận 10, Tp.HCM
Điện thoại: 08-62818181
Tin rao thuộc dự án
Xem tin rao Bán căn hộ chung cư Hoàng Anh River View
Xem tin rao Bán loại bất động sản khác Hoàng Anh River View
Xem tin rao Cho thuê căn hộ chung cư Hoàng Anh River View
Xem tin rao Cho thuê cửa hàng, ki ốt Hoàng Anh River View
Dự án cùng khu vực
Feliz En Vista
Đường Đồng Văn Cống, Phường Thạnh Mỹ Lợi, Quận 2, Hồ Chí Minh
Giá từ:Đang cập nhật
