MD Complex Mỹ Đình
- Loại hình phát triển Căn hộ, Chung cư
- Chủ đầu tư Tổng công ty đầu tư phát triển nhà và đô thị Bộ Quốc Phòng
- Địa chỉ Nguyễn Cơ Thạch, Mỹ Đình 1, Nam Từ Liêm, Hà Nội
- Tổng diện tích 6.516 m²
- Diện tích xây dựng 2.648 m²
- Bàn giao nhà Quý IV/2014
- Giá bán 25 triệu/m²
- Quy mô dự án 2 tòa nhà cao 29 tầng (01 toà căn hộ cao cấp - 01 toà văn phòng)
Thông tin chung cư MD Complex Mỹ Đình
Chung cư MD Complex Mỹ Đình nằm trên đường Nguyễn Cơ Thạch và Hàm Nghi trong quần thể Khu đô thị Mỹ Đình. Dự án có lợi thế cơ sở hạ tầng đồng bộ tiếp giáp nhiều trục đường lớn như đường QL32 đường Phạm Hùng, Xuân Thủy, Cầu Giấy.
Chung cư MD Complex Mỹ Đình Tower có vị trí rất đắc địa có thể nói là đẹp nhất quần thể Mỹ Đình hiện nay. Đây là tòa nhà thương mại xây dựng cho cán bộ cao cấp phục vụ trong quân đội thuộc Bộ quốc phòng nên dân trí sẽ rất cao và văn minh.
- Tên chính thức: MD Complex Mỹ Đình
- Chủ đầu tư: Tổng Công ty Đầu tư và Phát triển nhà Đô thị Bộ Quốc phòng
- Đơn vị thi công: Công ty CPXD số 2 - Vinaconex 02
- Khởi công: Năm 2012
- Bàn giao: Quý IV/2014

Phối cảnh chung cư MD Complex Mỹ Đình
Vị trí MD Complex Mỹ Đình:
Chung cư MD complex Tower nằm trên đường Nguyễn Cơ Thạch, ngã tư cắt Nguyễn Cơ Thạch - Hàm Nghi, khu đô thị Mỹ Đình 1, Xã Mỹ Đình, huyện Từ Liêm, Hà Nội.

Vị trí chung cư MD Complex Mỹ Đình
Hạ tầng MD Complex Mỹ Đình:
Việc học tập của con em cư dân chung cư MD Complex Mỹ Đình cũng rất thuận lợi với các trường cấp 1, 2 trong khu đô thị như Đoàn Thị Điểm, Lê Quý Đôn, gần Trường Đại học Quốc gia, Đại học Thương mại,...

Liên kết vùng tại dự án
Sơ đồ tổng thể MD Complex Mỹ Đình
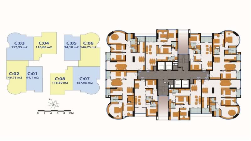
Mặt bằng MD Complex Mỹ Đình
- Tầng điển hình
THƯ VIỆN ẢNH MD Complex Mỹ Đình
Tiến độ quý I/2016 (ngày 27/01/2016) MD Complex Mỹ Đình
Tiến độ quý III/2016 (ngày 24/09/2016) MD Complex Mỹ Đình
Tiến độ quý IV/2016 (ngày 26/11/2016) MD Complex Mỹ Đình
Tiến độ quý IV/2016 (ngày 12/12/2016) MD Complex Mỹ Đình
VIDEO Bán căn hộ chung cư MD Complex Tower - Mỹ Đình
Chủ đầu tư MD Complex Mỹ Đình
- Tổng công ty đầu tư phát triển nhà và đô thị Bộ Quốc Phòng
- Địa chỉ:Số 86 Lê Trọng Tấn - Phường Khương Mai - Quận Thanh Xuân, Hà Nội
- Điện thoại:(04) 38521690
- Email: nhabqp@gmail.com
- WebSite:http://mhdi.vn
Tổng công ty đầu tư phát triển nhà và đô thị Bộ Quốc Phònglà doanh nghiệp trực tiếp phục vụ an ninh, quốc phòng thuộc Bộ Quốc phòng Việt Nam, được Nhà nước đầu tư 100% vốn, hoạt động theo mô hình công ty mẹ - công ty con do Bộ Quốc phòng quyết định thành lập.
Tổng công ty đầu tư phát triển nhà và đô thị Bộ Quốc Phòng được thành lập ngày 17/9/1987 theo Quyết định số 183/QĐ-TM ngày 17/9/1987 của Tổng Tham mưu trưởng trên cơ sở Ban Kiến thiết công trình 75325.
Chức năng nhiệm vụ
Thực hiện các dự án tái định cư; Chuẩn bị đầu tư các dự án và tổ chức quản lý, thực hiện các dự án đầu tư xây dựng các khu nhà ở, KĐTM phục vụ chính sách nhà ở cho cán bộ Quân đội và kinh doanh theo cơ chế thị trường; Tư vấn khảo sát thiết kế; Quản lý, vận hành khai thác dịch vụ nhà ở, khu đô thị mới sau đầu tư; Thi công xây lắp công trình; Sản xuất và kinh doanh vật liệu xây dựng;
Tin rao thuộc dự án
Xem tin rao Cho thuê văn phòng MD Complex Mỹ Đình
Dự án cùng khu vực
The Emerald
Ô đất CT08 - Khu đô thị Mỹ Đình - Mễ Trì, phường Mỹ Đình 1, quận Nam Từ Liêm, TP. Hà Nội
Giá từ:Đang cập nhật
Dự án cùng phân khúc
Ecolife Capitol
Số 60 Lê Văn Lương kéo dài, phường Mễ Trì và Trung Văn, quận Nam Từ Liêm, TP. Hà Nội
Giá từ:26 triệu/m²