Saigonland Apartment
- Loại hình phát triển Căn hộ, Chung cư
- Chủ đầu tư Công ty TNHH Hoàn Cầu
- Địa chỉ Đường D2, Phường 25, Bình Thạnh, Hồ Chí Minh
- Tổng diện tích 17.828 m²
- Giá bán 25 triệu/m²
- Quy mô dự án 2 tầng hầm, 1 trệt, 19 lầu, 1 sân thượng và mái
Thông tin dự án Saigonland Apartment
Sài Gòn Land Apartment – Điện Biên Phủ (Cantavil Hàng Xanh, Hoàn Cầu Apartment) tọa lạc ngay vị trí mặt tiền đường D2, Bình Thạnh gần ngay trường Đại Học Sài Gòn HuTech Quận Bình Thạnh, TP.HCM. Dự án do Tập đoàn Hoàn Cầu làm CĐT.
- Tên dự án: Sài Gòn Land Apartment – Điện Biên Phủ
- Bao gồm: 2 tầng hầm, 1 trệt, 19 lầu, 1 sân thượng và mái.
- Diện tích sàn: 710m2.
- Diện tích hầm: 1350m2.
- Tổng diện tích xây dựng 17.828 m2.
Bên cạnh chủ đầu tưCantavil Hoàn Cầuvới tiềm lực tài chính khá mạnh, dự án căn hộ Sài Gòn Land Apartment – Điện Biên Phủ còncóngân hàng Nam Á làm đồng chủ đầu tư. Do đó, về vấn đề tài chính và tiến độ xây dựng của dự án khách hàng hoàn toàn có thể yên tâm.

Phối cảnh chung cư D2 Hoàn Cầu
Vị trí Saigonland Apartment:
Căn hộ D2 Hoàn Cầu tọa lạc ngay vị trí mặt tiền đường D2, Bình Thạnh, gần ngay trường đại học Sài Gòn HuTech Quận Bình Thạnh, TP.HCM. Đối diện là khu vui chơi Du lịch Văn Thánh, nằm trong khu dân cư sầm uất, tập trung nhiều trung tâm thương mại, nhiều tòa cao ốc, căn hộ cao cấp, hiện đại và sầm uất bậc nhất của thành phố. Từ đây, bạn sẽ chỉ mất 5 phút chạy xe để di chuyển vào trung tâm quận 1.

Vị trí dự án Saigonland Apartment
Hạ tầng Saigonland Apartment:
Saigonland Apartment được thừa hưởng đầy đủ các tiện ích của quận Bình Thạnh từ siêu thị Coopmart Xô Viết Nghệ Tĩnh, Smart Mall Saigon Pearl, trường đại học Giao Thông Vận Tải, trường đại học Hutech, trường đại học Ngoại Thương....
Sơ đồ tổng thể Saigonland Apartment
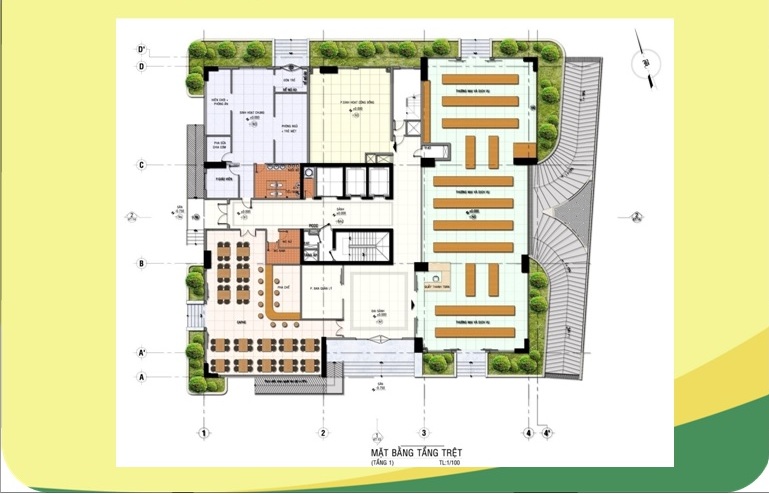
Mặt bằng Saigonland Apartment
- Tầng trệt
- Tầng điển hình
Các căn hộ tầng điển hình
THƯ VIỆN ẢNH Saigonland Apartment
Tiến độ quý III/2016 (Ngày 29/08/2016) Saigonland Apartment
Lộ trình thanh toán Saigonland Apartment

Chủ đầu tư Saigonland Apartment
- Công ty TNHH Hoàn Cầu
- Địa chỉ:Lầu 9, tòa nhà Nam Á Tower, 201-203 Cách Mạng Tháng 8, phường 4, quận 3, Tp.HCM
- Điện thoại:(08) 38329897
- Email: info@hoancau.com
- WebSite:www.hoancaugroup.com.vn
Công ty TNHH Hoàn Cầu thành lập và phát triển cũng là 17 năm Hoàn Cầu nhịp bước cùng những đổi thay của nền kinh tế nước nhà. Từ những khó khăn của buổi đầu mở cửa,Việt Nam giờ đây đã trở thành một trong những nền kinh tế có sức thu hút đầu tư mạnh mẽ nhất.
Trong những khó khăn ban đầu, Hoàn Cầu đã không ngừng nỗ lực phát triển, và giờ đây khi những vận hội mới đang mở ra, Hoàn cầu sẽ vươn xa hơn nữa. Hoàn Cầu không chỉ là nơi tạo ra những công trình chắc chắn thiết thực, hữu ích, mà chúng tôi còn là những người góp phần làm thay đổi diện mạo của đất nước.
Với sự tích lũy kinh nghiệm trong nhiều năm, công ty thấu hiều tầm quan trọng của việc tạo ra những công trình, sản phẩm và dịch vụ với chất lượng hoàn hảo, mang lại giá trị đích thực và nâng tầm cho cuộc sống của quý khách hàng. Song song đó, Hoàn Cầu còn mang lại những công trình với tiến độ nhanh nhất, những sản phẩm với giá cả cạnh tranh nhất và những dịch vụ tuyệt vời nhất. Không ngừng vươn xa chính là lời khẳng định và là cam kết của Hoàn Cầu cho những gì công ty đã, đang và sẽ thực hiện.
Lĩnh vực hoạt động: Đầu tư kinh doanh bất động sản
Tin rao thuộc dự án
Xem tin rao Bán căn hộ chung cư Saigonland Apartment
Dự án cùng khu vực
Dự án cùng phân khúc
Chung cư Nguyễn Ngọc Phương
Đường Nguyễn Ngọc Phương, Phường 19, Bình Thạnh, Hồ Chí Minh
Giá từ:37 triệu/m²
