IA20 Ciputra
- Loại hình phát triển Căn hộ, Chung cư
- Chủ đầu tư Công ty CP Đầu tư Bất động sản Đông Đô - BQP
- Địa chỉ Lô đất I.A20 Khu đô thị Nam Thăng Long, phường Đông Ngạc, quận Bắc Từ Liêm, TP. Hà Nội
- Tổng diện tích 30.091 m²
- Diện tích xây dựng 23.687 m²
- Giá bán 23 triệu/m²
- Quy mô dự án Gồm 3 tòa chung cư và các biệt thự, liền kề
Thông tin chung cư IA20 Ciputra
Chung cư IA20 Ciputra tọa lạc trong Khu đô thị Nam Thăng Long. Dự án được xây dựng để đáp ứng nhu cầu nhà ở cho các cán bộ cấp cao thuộc Văn phòng Quốc hội, Văn phòng Chính phủ, Văn phòng Trung ương Đảng... nên có giá bán hợp lý. Đây là cơ hội lý tưởng dành cho các khách hàng mong muốn sở hữu căn hộ có đầy đủ tiện ích cao cấp với giá bán hấp dẫn nhất.
- Tên dự án: IA20 Ciputra
- Chủ đầu tư: Công ty CP Đầu tư BĐS Đông Đô - Bộ Quốc Phòng
- Đơn vị thi công: Tổng công ty Đầu tư Phát triển Hạ tầng Đô thị - UDIC
- Đơn vị thiết kế: Công ty CP Kiến trúc Tây Hồ
- Tổng diện tích: 30.091m2, trong đó:
+ Khu cao tầng: 18.329m2, gồm 3 tòa chung cư cao từ tầng 29-40 tầng
+ Sân vườn: 7.214m2
+ Bãi đỗ xe ngoài trời: 1.020m2
+ Sân chơi + cây xanh: 2.481m2
+ Khu thấp tầng: 5.356m2
+ Giao thông nội bộ: 3.825m2
- Mật độ xây dựng:
+ Khu cao tầng: 35,5% đối với phần thân và 54,5% đối với khối đế
+ Khu thấp tầng: 77,6%

Phối cảnh tổng thể chung cư IA20 Ciputra
Vị trí IA20 Ciputra:
Chung cư IA20 Ciputra tọa lạc về phía Tây Bắc Hà Nội, nằm trên đường Phạm Văn Đồng, thuộc phường Đông Ngạc, quận Bắc Từ Liêm, Hà Nội, cách trung tâm thành phố hơn 7km. Dự án có phía Đông giáp đường Vành đai 2, bao quanh bởi hồ Tây và sông Hồng. Cổng dự án phía Tây, sát chân cầu Thăng Long, giáp đường Vành đai 3, hướng đi sân bay quốc tế Nội Bài rất thuận lợi cho việc di chuyển đến các vùng xung quanh.

Vị trí chung cư IA20 Ciputra
Hạ tầng IA20 Ciputra:
Căn hộ IA20 Ciputra được thừa hướng đầy đủ những tiện ích vượt trội của Khu đô thị quốc tế Ciputra với bể bơi 4 mùa tiêu chuẩn, khu giải trí cho người già, sân chơi dành cho trẻ em, phòng họp lớn, phòng ăn VIP, CLB Fitness, sân Golf, học viện Golf...
Các cư dân tại dự án có thể tự hào vì con cái được sống trong môi trường đẳng cấp, văn minh bậc nhật miền Bắc với hệ thống trường học Quốc tế chất lượng hàng đầu như Sunshine House, trường quốc tế Singapoor, Ha Noi Academy, Kingder World,Unis Ha Noi...





Các tiện ích tại dự án

Liên kết vùng tại dự án
Sơ đồ tổng thể IA20 Ciputra
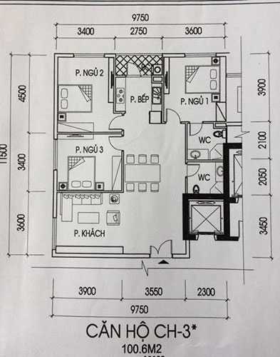
Mặt bằng IA20 Ciputra
- Tòa A
- Tòa B
Các căn hộ tòa A Các căn hộ tòa B
THƯ VIỆN ẢNH IA20 Ciputra
VIDEO Giới thiệu dự án chung cư IA 20 Ciputra
Lộ trình thanh toán IA20 Ciputra
Căn hộ IA20 Ciputra có giá từ 23-25 triệu/m2.
Dự án có tiến độ thanh toán linh hoạt, chia thành 6 đợt:
- Đợt 1: Thanh toán 30% giá trị căn hộ từ 15-28/2 ký hợp đồng mua bán
- Đợt 2: Thanh toán 20% giá trị căn hộ tháng 8/2017
- Đợt 3: Thanh toán 15% giá trị căn hộ tháng 12/2017
- Đợt 4: Thanh toán15% giá trị căn hộ tháng 04/2018
- Đợt 5: Thanh toán 15% giá trị căn hộ tháng 08/2018
- Đợt 6: Thanh toán 5% giá trị căn hộ tháng 12/2018
Chủ đầu tư IA20 Ciputra
- Công ty CP Đầu tư Bất động sản Đông Đô - BQP
- Địa chỉ:Tầng 4 tòa nhà Gami, số 11 Phạm Hùng, phường Mỹ Đình 2, quận Nam Từ Liêm, Hà Nội
- Điện thoại:(04) 37958466
Công ty CP Đầu tư Bất động sản Đông Đô - BQP được thành lập và hoạt động theo Giấy phép kinh doanh số 0104580517 do Sở Kế hoạch và Đầu tư TP. Hà Nội cấp ngày 06/04/2010.
Doanh nghiệp hoạt động chính trong lĩnh vực kinh doanh bất động sản và bán buôn chuyên doanh khác.
Tin rao thuộc dự án
Xem tin rao Bán căn hộ chung cư IA20 Ciputra
Xem tin rao Bán nhà riêng, ngõ, hẻm IA20 Ciputra
Xem tin rao Bán nhà biệt thự, liền kề IA20 Ciputra
Xem tin rao Bán nhà mặt tiền, mặt phố IA20 Ciputra
Xem tin rao Bán đất nền dự án IA20 Ciputra
Xem tin rao Bán kho, nhà xưởng IA20 Ciputra
Xem tin rao Bán loại bất động sản khác IA20 Ciputra
Xem tin rao Cho thuê căn hộ chung cư IA20 Ciputra
Xem tin rao Cho thuê cửa hàng, ki ốt IA20 Ciputra
Xem tin rao Cho thuê loại bất động sản khác IA20 Ciputra
Xem tin rao Mua nhà biệt thự, liền kề IA20 Ciputra
Dự án cùng khu vực
Sunshine City
Khu đô thị Nam Thăng Long, phường Đông Ngạc, quận Bắc Từ Liêm, TP. Hà Nội
Giá từ:Đang cập nhật
Chung cư C1 C2 Xuân Đỉnh
Số 323 Xuân Đỉnh, phường Xuân Đỉnh, quận Bắc Từ Liêm, TP. Hà Nội
Giá từ:23 triệu/m²
Chung cư 199 Hồ Tùng Mậu
Số 199 Hồ Tùng Mậu, phường Cầu Diễn, Bắc Từ Liêm, Hà Nội
Giá từ:20 triệu/m²
Dự án cùng phân khúc
Chung cư C1 C2 Xuân Đỉnh
Số 323 Xuân Đỉnh, phường Xuân Đỉnh, quận Bắc Từ Liêm, TP. Hà Nội
Giá từ:23 triệu/m²
Chung cư 199 Hồ Tùng Mậu
Số 199 Hồ Tùng Mậu, phường Cầu Diễn, Bắc Từ Liêm, Hà Nội
Giá từ:20 triệu/m²
